Castlefield Park, Harlington, Phase 3

Cleaver Close, Harlington, Harlington, LU5 6US

2 Beds
1 Bath


Description

***LAST PLOT AVAILABLE***

Welcome to Castlefield Park, Harlington where we are delighted to offer four shared ownership new homes with share purchase available from 10% to 75%.

This last phase of properties are due to be build complete April 2026.

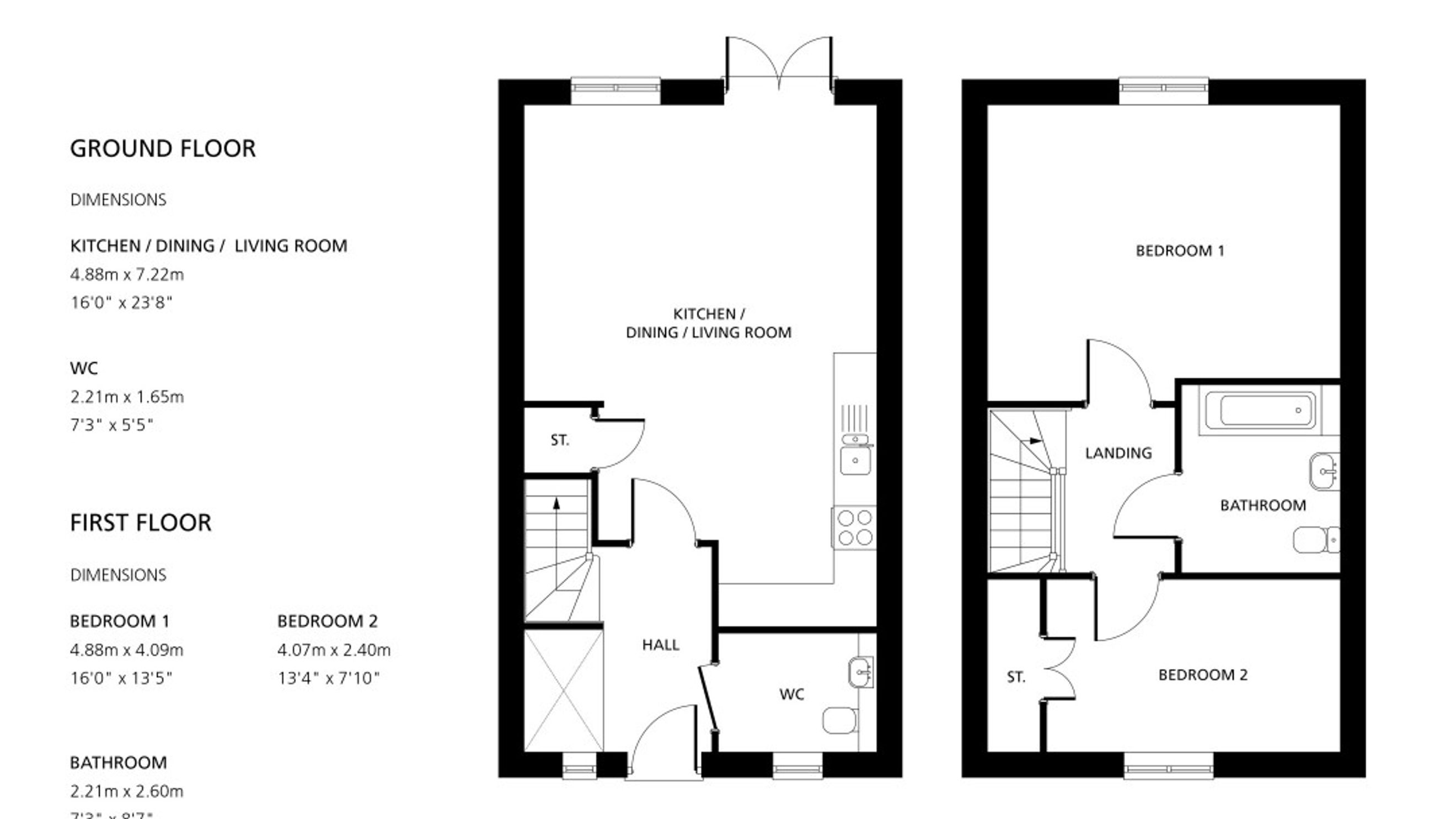
These two bedroom houses comprise of open plan living/dining/kitchen area,  hallway and downstairs wc, family bathroom and two bedrooms.

Built by Crest Nicholson and perfectly situated in a desirable village location, these energy-efficient homes benefit from excellent local amenities and great transport links. 

Computer Generated Images are for information only and the specification is subject to change. Any dimensions should not be considered 100% accurate. Site plan is for plot location purposes only.

New property - no council tax band available yet.

Eligibility rules apply: You cannot own another property, single or combined income cannot be more than £80K per annum.

Shared Ownership  
Shared Ownership is a great way for you to get a foot on the property ladder if you can't afford to buy a home outright on the open market. It can ease the pressure of needing to save for a large deposit, or having to make high mortgage repayments.

Essentially, it means you'll be buying a share of your home - usually up to 75% - and paying an affordable rent on the remainder. When you're in a position to do so, it's also possible to buy further shares in your home. This is known as Staircasing.

Shares are available from 40% to 75%. Please see example prices and rents listed below for a 2 bedroom end terrace house. Lower share possible to support affordability.

40% Share - Purchase Price £168,000 - Rent Charges of £577.50
75% Share - Purchase Price £315,000 - Rent Charges of £240.63

Full Property Value - £420,000

Service Charges 
A monthly service charge will also apply of £36.80 as well as monthly buildings insurance of £14.77 for 2-bedroom house.

 

Description

Local area information
Stations
Showing nearest stations

Properties in this development

Developer banner

Amplius has been in business for 30 years. We provide shared ownership and rented homes for more than 29,000 people across Bedfordshire, Buckinghamshire, Northamptonshire and Hertfordshire.

We create homes for those that need them, provide personal support, and help people to learn, work and be healthy.

Filters

Scheme eligibility

to
to
to
2 beds / 1 bath
Shared Ownership new homes now available at Castlefield Park, Harlington.
Shared Ownership New Build
Share 10.00% / Full price £410,000 / Deposit £2,050
Estimated monthly cost
£1,106
£
Disclaimer
The information displayed about this property comprises a property advertisement. Share to Buy Ltd makes no warranty as to the accuracy or completeness of the advertisement or any linked or associated information, and Share to Buy has no control over the content. This property advertisement does not constitute property particulars. The information is provided and maintained by the sponsoring housing association. Please contact the housing association or estate agent directly to obtain any information which may be available under the terms of The Energy Performance of Buildings (Certificates and Inspections) (England and Wales) Regulations 2007.
Developer banner

Amplius has been in business for 30 years. We provide shared ownership and rented homes for more than 29,000 people across Bedfordshire, Buckinghamshire, Northamptonshire and Hertfordshire.

We create homes for those that need them, provide personal support, and help people to learn, work and be healthy.

Request details from the housing provider