Available

£136,250

Longhurst @ Waterbeach (Stonebond) | Rye Mews, CB25 9PG
Share 25% / Full price £545,000 / Min deposit £6,813

House
3 bedrooms
2 bathrooms

Sign in to enquire

Monthly cost calculator


Summary

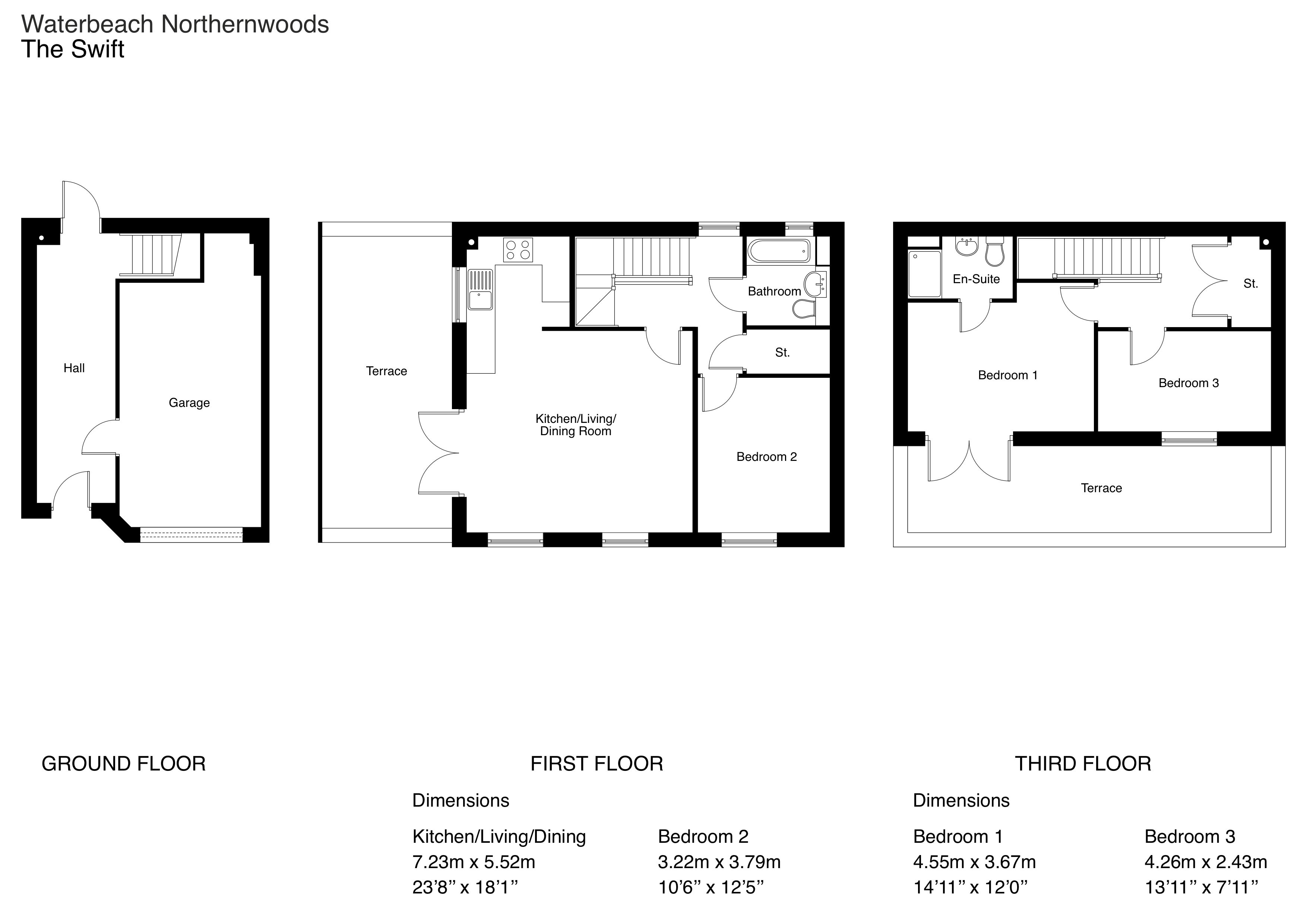
The Swift - 3 Bedroom Semi-Detached House

Description

We are excited to release a collection of shared ownership apartments located in the new community of Waterbeach, Cambridgeshire.

The Swift is a contemporary three bedroom house offering flexible living. On the ground floor you will find a single garage and hallway giving access to the first floor.

The first floor includes an open plan kitchen/dining/living room with double doors to a terrace garden. Also on the first floor is a double bedroom, family bathroom and storage cupboard.

On the second floor is the Master Bedroom with en-suite, a single bedroom and storage cupboard.

Located in an area which allows you to discover the beauty of England's countryside, where amazing architecture blends effortlessly with luscious landscapes.

Whether walking or cycling is your thing, this is a place you just have to explore. Waterbeach - inspired by the former barracks and airfields it sits upon – is a development built for the future.

Also boasting a rich heritage, the area has one of the most prestigious universities in the country, and the River Cam winds its way through the county which is a captivating destination for all.

With ecology at its heart, Waterbeach has a 23- acre lake, wetlands and allotments. Dedicated pathways have been created to allow you to enjoy wildlife in its natural habitats.

Blessed with transport links, Waterbeach has been designed with sustainability in mind. Whether walking, cycling, or the sustainable travel hub, you’re connected to it all.

The local sports hall and studio has everything from football to yoga, while there's an annual summer event to showcase work from artists of all abilities as well as pop-up food festivals.
Waterbeach has something for everyone.

Setting up home in the Waterbeach community will present lots of opportunities for young minds to grow, with three new primary schools planned for the site, as well as a secondary
school.

These homes are advertised on behalf of Longhurst Housing Group. Internal images are computer generated and may show different plots. The site plan is for plot location purposes only. Eligibility rules apply. A reservation fee is payable if you are offered a home.

Description

Property information & downloads

Key features

Material information

Floor plan Brochure Energy Certificate
Local area information
My Places Include travel time from key places

You can add locations as 'My Places' and save them to your account. These are locations you wish to commute to and from, and you can specify the maximum time of the commute and by which transport method.

The Shared Ownership Shop
Disclaimer
The information displayed about this property comprises a property advertisement. Share to Buy Ltd makes no warranty as to the accuracy or completeness of the advertisement or any linked or associated information, and Share to Buy has no control over the content. This property advertisement does not constitute property particulars. The information is provided and maintained by the sponsoring housing association. Please contact the housing association or estate agent directly to obtain any information which may be available under the terms of The Energy Performance of Buildings (Certificates and Inspections) (England and Wales) Regulations 2007.
Sign in to enquire
Monthly cost calculator
£136,250 Shared Ownership New Build Full price £545,000
Estimated monthly cost £1,742
£

How is this calculated?

Send enquiry to the seller