Available

£140,000

Grove House, TN16 1FE
Share 50% / Full price £280,000 / Min deposit £14,000

Apartment
1 bedroom
1 bathroom

Sign in to enquire

Monthly cost calculator


Summary

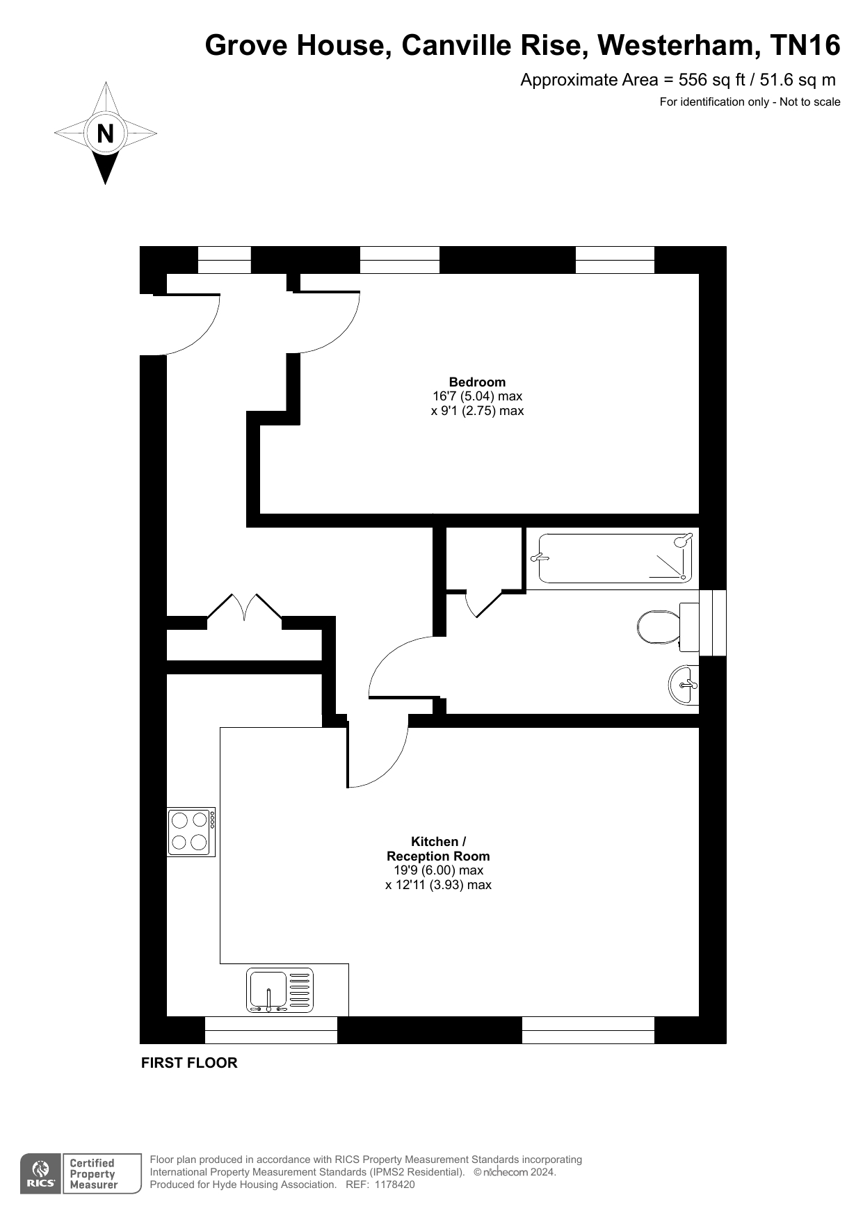
A first floor, one-bedroom apartment in Westerham.

Eligibility

You may be eligible for this property if:

  • You have a gross household income of no more than £80,000 per annum.
  • You are unable to purchase a suitable home to meet your housing needs on the open market.
  • You do not already own a home or you will have sold your current home before you purchase or rent.
Description

Property Features:

· Allocated parking

· Communal entrance with entry system

· Open plan kitchen and living space

· Integrated kitchen appliances

· A spacious bedroom

· A family bathroom with shower over bath

· Built in bathroom and hallway storage

Lease: Commenced 2019 with 999-year term

Council Tax Band: Sevenoaks Council – B

Prior to viewing: All applicants must be registered and approved by Hyde New Homes, and may be required to carry out a shared ownership affordability assessment.

Financial Information:

Property Value = £280,000

Percentage Share = 50%

Share Price = £140,000

Monthly Ground Rent = £12.50

Monthly Rent = £411.53 (From 1st April 2025)

Monthly Service Charge = £158.93 (From 1st April 2025)

Please note the rent and service charge is reviewed annually 01 April.

Your home may be at risk if you do not keep up your mortgage and rent repayments. Particulars give an overall description of the property and are not intended to constitute an offer or form part of any contract. Areas, distances or measurements referred to are approximate. For confirmation of property details refer to the terms of the lease and plans from your solicitor. Hyde New Homes Resale properties are sold as seen, photographs and details (excluding financial information) are provided by the leaseholder. Please note that the Resales Team have not visited this property.

Description

Property information & downloads

Key features

Material information

Key Information Document Floor plan Energy Certificate
Local area information
My Places Include travel time from key places

You can add locations as 'My Places' and save them to your account. These are locations you wish to commute to and from, and you can specify the maximum time of the commute and by which transport method.

Disclaimer
The information displayed about this property comprises a property advertisement. Share to Buy Ltd makes no warranty as to the accuracy or completeness of the advertisement or any linked or associated information, and Share to Buy has no control over the content. This property advertisement does not constitute property particulars. The information is provided and maintained by the sponsoring housing association. Please contact the housing association or estate agent directly to obtain any information which may be available under the terms of The Energy Performance of Buildings (Certificates and Inspections) (England and Wales) Regulations 2007.
Sign in to enquire
Monthly cost calculator
£140,000 Shared Ownership Resale Full price £280,000
Estimated monthly cost £1,266
£

How is this calculated?

Send enquiry to the seller