Available

£231,000

Addiscombe Grove CR0 | 28-30 Addiscombe Grove, CR0 5LP
Share 100% / Full price £231,000 / Min deposit £23,100

Apartment
1 bedroom
1 bathroom
Pets allowed

All gorgeous show home furniture included!
Sign in to view phone number Sign in
Sign in to email housing provider Sign in

Monthly cost calculator


Summary

Own this one-bedroom home for just £231,000 including all gorgeous show home furniture! Don't miss your chance to secure a deeper Pocket discount.

Eligibility

To be eligible to purchase a Pocket home at this scheme, buyers will need to:

  • Have a household income of no more than £90,000 per annum
  • Be a first time buyer
Description

Flat 10 is being sold with all the gorgeous show home furniture included, own 100% of your home for just £231,000. Create a My Pocket account to book in for a viewing!

All homes will benefit from access to a 9th floor landscaped Social Garden, 20th floor Nordic Garden and 21st floor Hidden Garden - all with fantastic views over south London - as well as a residents' lounge, a co-working space and a wellness room, all equipped with Hyperoptic Wi-Fi.

Addiscombe Grove CR0 is located just a two minute walk from East Croydon station, providing speedy transport links into central London as well as links across south London via the Tramlink service.

EPC: B rating
Council tax: Band C

Pocket homes at Addiscombe Grove are sold at a 20% discount to people who meet the following eligibility criteria: buyers must live or work in London, have an annual income of no more than £90,000 and be a first time buyer. When the time comes to resell, you will initially have to try to find a buyer who meets the eligibility criteria and subletting is only permitted in extenuating circumstances; see brochure for further details. The reservation fee to secure a home is £500 which is fully refundable if the reservation is cancelled within 14 days of finalisation. The home is ready to move into now and the period from reservation to completion usually takes two – three months. Buyers should budget approximately £4,000 - £5,000 for the costs associated with buying a home. This home is being sold by Pocket Living Addiscombe Grove Limited, Tower House, 10 Southampton St, WC2E 7HA. Images are of a typical Pocket home.

The method of construction is a modular built structure with a tiled facade. The warranty provider is Premier Guarantee, and this provides a two-year defect liability period on the individual home, and 10 years on the structure of the building (until March 2033). Addiscombe Grove is a car-free development (apart from with respect to two shared spaces for Blue Badge holders available on a first come first serve basis), and homeowners will not be granted a residents' permit. A Heat Interface Unit (HIU) connected to a centralised boiler delivers heating and hot water; each resident will be billed according to their own controlled usage and cannot change gas suppliers. For electricity, residents can change to a different supplier of their choosing, subject to availability. Wiring for Sky+/Sky Q, BT telephone and BT Openreach Fibre is available, and residents will receive Hyperoptic Wi-Fi installed with a 3-month free service. Buyers can change to a different supplier of their own choosing, subject to availability. Mobile coverage varies by provider, for an indication of specific speeds and supply or coverage in the area, refer to the Ofcom's mobile and broadband checker. These homes will come with a 125-year lease (from 2022) and a Residents’ Management Company (RMC) has been formed by the homeowners at Addiscombe Grove. It is the intention that the freehold will be transferred to the RMC upon the sale of the last home. The building is managed by a managing agent, and the service charge covers the cost of running the building.

Description

Property information & downloads

Key features

Material information

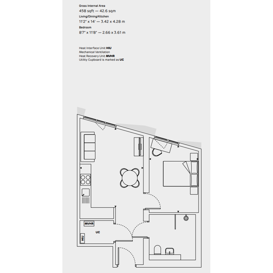
Floor plan Brochure
Local area information
My Places Include travel time from key places

You can add locations as 'My Places' and save them to your account. These are locations you wish to commute to and from, and you can specify the maximum time of the commute and by which transport method.

Disclaimer
The information displayed about this property comprises a property advertisement. Share to Buy Ltd makes no warranty as to the accuracy or completeness of the advertisement or any linked or associated information, and Share to Buy has no control over the content. This property advertisement does not constitute property particulars. The information is provided and maintained by the sponsoring housing association. Please contact the housing association or estate agent directly to obtain any information which may be available under the terms of The Energy Performance of Buildings (Certificates and Inspections) (England and Wales) Regulations 2007.
Sign in to view phone number Sign in
Sign in to email housing provider Sign in
Monthly cost calculator
£231,000 Discount Full Ownership Full price £231,000
Estimated monthly cost £1,348
£

How is this calculated?

Send enquiry to the seller