Available

£260,000

Oak Avenue, RG40 1LR
Share 50% / Full price £520,000 / Min deposit £13,000

House
3 bedrooms
2 bathrooms

Sign in to enquire

Monthly cost calculator


Summary

3 Bed House for Resale in Wokingham

Eligibility

Who is it for?

As long as you are over 18
Your household income is less than £80,000
And you don’t already own a home at the time of buying your Shared Ownership property
… then Shared Ownership could be right for you

Some properties may be bound by local connection restrictions in order to make them affordable for local customers. We'll let you know if there are any restrictions in place when you are searching for a property.

A local connection to Wokingham is required.

Description

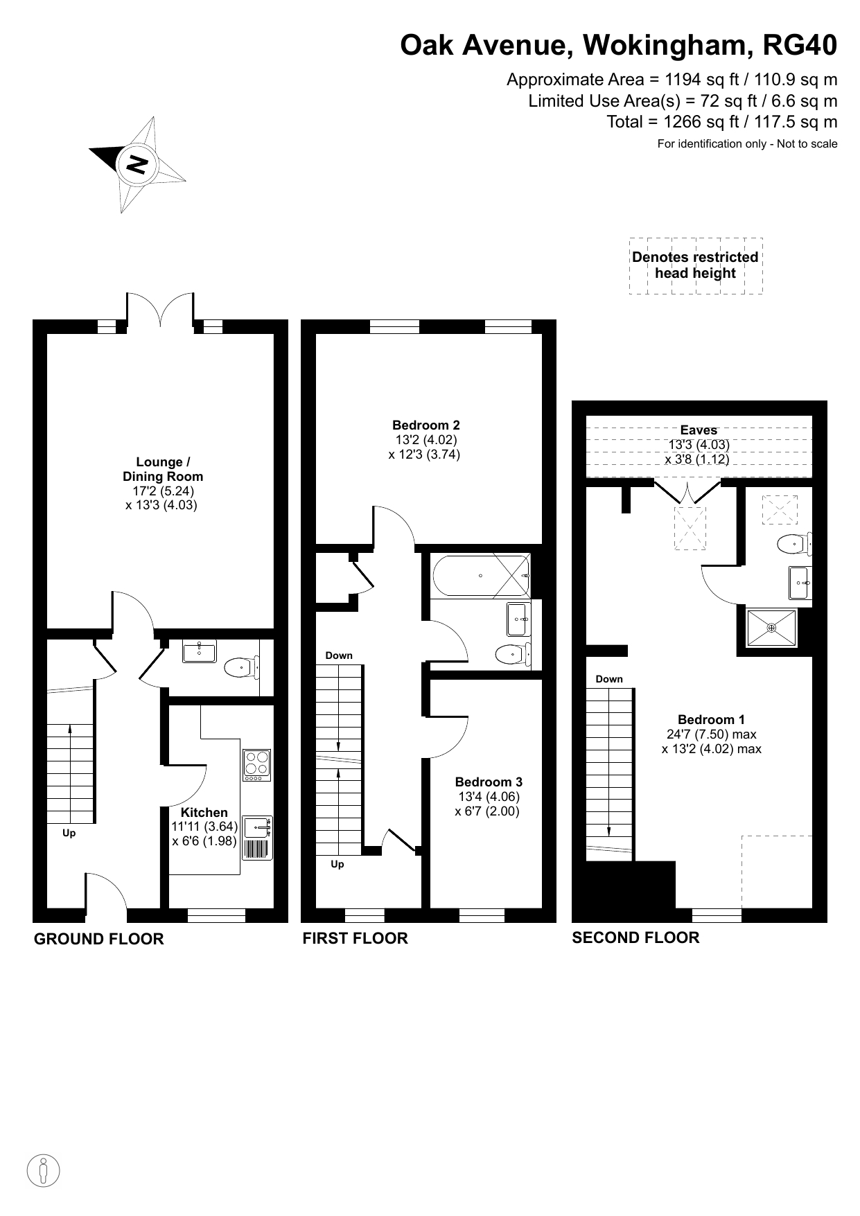
Well presented 3-Bed mid terraced home with a lovely family sized living room, ground floor WC, practical under stairs cupboard & fully equipped modern kitchen.

French doors opening onto a private garden which is set to lawn & patio seating area.

Upstairs you will find a large double bedroom, second single bedroom & modern family bathroom with shower over bath. The 3rd floor boast a beautiful large bedroom with en-suite & power shower. Completing the top floor is a very large eaves storage system.

Property has allocated parking for 2 cars one being under cover.

The estate itself comprises of a park just across the road for children, park and ride facility, lovely friendly pub with great service and food.

Sought after area, walking distance to town centre & quick access to the M4.

Description

Property information & downloads

Key features

Material information

Floor plan Energy Certificate
Local area information
My Places Include travel time from key places

You can add locations as 'My Places' and save them to your account. These are locations you wish to commute to and from, and you can specify the maximum time of the commute and by which transport method.

Disclaimer
The information displayed about this property comprises a property advertisement. Share to Buy Ltd makes no warranty as to the accuracy or completeness of the advertisement or any linked or associated information, and Share to Buy has no control over the content. This property advertisement does not constitute property particulars. The information is provided and maintained by the sponsoring housing association. Please contact the housing association or estate agent directly to obtain any information which may be available under the terms of The Energy Performance of Buildings (Certificates and Inspections) (England and Wales) Regulations 2007.
Sign in to enquire
Monthly cost calculator
£260,000 Shared Ownership Resale Full price £520,000
Estimated monthly cost £2,041
£

How is this calculated?

Send enquiry to the seller