Available

£88,500

Churchill Fields | Churchill Court, DT11 0NF
Share 30% / Full price £295,000 / Min deposit £4,425

House
2 bedrooms
1 bathroom

Sign in to enquire

Monthly cost calculator


Summary

New homes available now in Dorset!

Eligibility

Who is it for?

As long as you are over 18
Your household income is less than £80,000
And you don’t already own a home at the time of buying your Shared Ownership property
… then Shared Ownership could be right for you

Some properties may be bound by local connection restrictions in order to make them affordable for local customers. We'll let you know if there are any restrictions in place when you are searching for a property.

Description

Applications open for last remaining 2 bedroom houses at Churchill Fields! Deposits from just £4,425!*

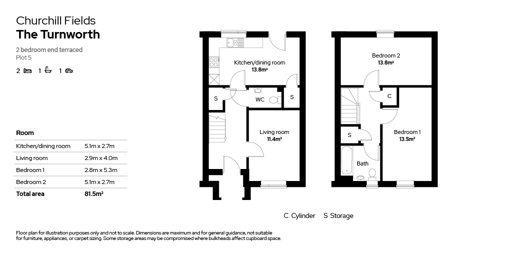
Availability: 4, 5 & 7.

The Turnworth is the perfect home for those looking to step onto the property ladder or for growing families. Starting with an entrance hallway leading through to a lounge facing the front of the home. Stretched across the back of the home is a stylish open-plan kitchen/dining room with access out onto your own garden laid to lawn. There's also a cloakroom plus storage space.

Upstairs are two well proportioned bedrooms, family bathroom and further storage space.

(*Based on a 5% deposit)

Description

Property information & downloads

Key features

Material information

Floor plan Price List Energy Certificate
Local area information
My Places Include travel time from key places

You can add locations as 'My Places' and save them to your account. These are locations you wish to commute to and from, and you can specify the maximum time of the commute and by which transport method.

Disclaimer
The information displayed about this property comprises a property advertisement. Share to Buy Ltd makes no warranty as to the accuracy or completeness of the advertisement or any linked or associated information, and Share to Buy has no control over the content. This property advertisement does not constitute property particulars. The information is provided and maintained by the sponsoring housing association. Please contact the housing association or estate agent directly to obtain any information which may be available under the terms of The Energy Performance of Buildings (Certificates and Inspections) (England and Wales) Regulations 2007.
Sign in to enquire
Monthly cost calculator
£88,500 Shared Ownership New Build Full price £295,000
Estimated monthly cost £1,014
£

How is this calculated?

Send enquiry to the seller