Available

£113,100

Benjamin Street, BA15 1FW
Share 30% / Full price £377,000 / Min deposit £5,655

House
2 bedrooms
1 bathroom

Sign in to register your interest

Monthly cost calculator


Eligibility

Who is it for?

As long as you are over 18
Your household income is less than £80,000
And you don’t already own a home at the time of buying your Shared Ownership property
… then Shared Ownership could be right for you

Some properties may be bound by local connection restrictions in order to make them affordable for local customers. We'll let you know if there are any restrictions in place when you are searching for a property.

Description

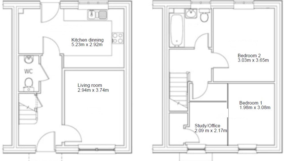
This smart and modern two-bedroom mid-terraced home offers light, well-proportioned living across two floors.

The ground floor features a stylish kitchen/dining room with an undermount sink, solid quartz Caesarstone worktop, and a door leading to the private garden, plus a spacious living area and downstairs WC.

Upstairs are two bedrooms, a versatile office/study, and a modern family bathroom. Built in 2018 by CG Fry & Son, the home enjoys an open outlook over trees and fields, two off-street parking spaces, and is ideally located within walking distance of the town centre, train station, and local amenities.

Description

Property information & downloads

Key features

Material information

Floor plan Energy Certificate
Local area information
My Places Include travel time from key places

You can add locations as 'My Places' and save them to your account. These are locations you wish to commute to and from, and you can specify the maximum time of the commute and by which transport method.

Disclaimer
The information displayed about this property comprises a property advertisement. Share to Buy Ltd makes no warranty as to the accuracy or completeness of the advertisement or any linked or associated information, and Share to Buy has no control over the content. This property advertisement does not constitute property particulars. The information is provided and maintained by the sponsoring housing association. Please contact the housing association or estate agent directly to obtain any information which may be available under the terms of The Energy Performance of Buildings (Certificates and Inspections) (England and Wales) Regulations 2007.
Sign in to register your interest
Monthly cost calculator
£113,100 Shared Ownership Resale Full price £377,000
Estimated monthly cost £1,187
£

How is this calculated?

Contact housing provider