Available

£87,000

Papermill Place, Walthamstow, Walthamstow, E17 6GG
Share 30% / Full price £290,000 / Min deposit £8,700

Apartment
1 bedroom
1 bathroom

L&Q Group
0330 038 6486 Ext 5167
Sign in to enquire

Monthly cost calculator


Summary

One bedroom purpose built apartmentMake this home your own, enjoy a £500 B&Q Voucher on completion* 

Description

SHARED OWNERSHIP

Full Market Value: £290,000

Share Value (30%): £87,000

Monthly Rent: £609.54

Service Charge: £206.30

Heating Charge: £36.32

Council Tax Band: B

125 year lease commenced December 2015 - 115 years remaining

EWS1 CERTIFICATION IS AVAILABLE FOR THIS BLOCK - B1 RATING- We are now working with an independent panel of Fire Engineers to review any L&Q building inspections conducted by Tri Fire. Where the panel is not satisfied with the inspection and certificate awarded, we will instruct a new inspection of the building as soon as possible.

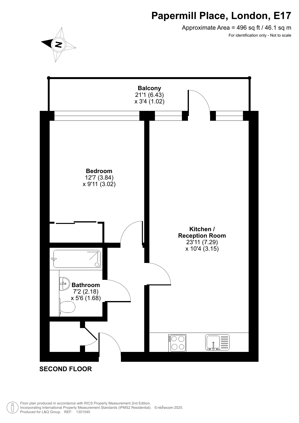
This east facing second floor apartment has an open-plan kitchen and living area opening onto a full width private balcony overlooking a quiet courtyard. The kitchen is fitted with a range of beech wall and base units with integrated oven, hob and extractor and spaces for white goods. The double bedroom, which overlooks the balcony includes built in storage. A contemporary tiles bathroom with a shower over bath and glass shower screen completes the accommodation. There is a designated parking space in the underground secure car park. Bike storage is subject to availability.

This property benefits from a sinking fund. A sinking fund is a long-term savings plan that leaseholders contribute to every month through service charges. This is used to pay for major works that are required, such as replacing a roof.

Lucida court is just a short stroll from the 500 acre Walthamstow Wetlands. The Green Flag award winning Wetlands is the largest nature reserve in London, packed with things to see and do and the perfect escape from City life. Best of all it's barely eight minutes from your new front door. Blackhorse Road tube station just a half mile away on foot. From here the Victoria Line will get you directly to Kings Cross in fifteen minutes, putting the heart of London less than a half hour away door to door. Heading to the West End? Oxford Circus is just five minutes further. Need to get to the City? Ride one stop to Walthamstow Central and swap to the overground for twenty minute runs to Liverpool Street. Or step off here entirely for the wining and dining delights of Walthamstow Village.

The buyer will require a deposit to obtain a mortgage for this property.

To meet the requirements for this property we require as a guideline, a minimum household income of £47,218. If you are offered the home, your ability to afford this property will be assessed at your financial interview. Please note that applicants should purchase the maximum share that they can afford and sustain.

Only applicants who are registered with London and Quadrant will be eligible to be offered a property in one of our schemes. If you are not registered please visit our website www.lqhomes.com and register to obtain your unique reference number.

Your home is at risk if you fail to keep up repayments on a mortgage, rent or other loan secured on it. Please make sure you can afford the repayments before you take out a mortgage.

These particulars are of opinion only, are intended to give a fair description and do not form the basis of a contract. The descriptions and all other information are believed to be correct as of June 2025.

*The £500 Amazon voucher is currently being offered on this resale property for a limited time and is applicable to any Shared Ownership purchase that completes a reservation on or before 31st October 2025, and then completes on the sale before 31st January 2026. The voucher will be supplied within 75 days of completion of the purchase and will be an E-Voucher, issued by email to the Sole or Primary Purchaser. Further terms and conditions may be in place from the voucher provider, and it is the purchaser's responsibility to satisfy themselves of any terms applicable. The voucher cannot be offset against any fees or monies due from the purchase. L&Q will not be responsible for direct payments to any lenders, or third parties. L&Q reserve the right to remove an incentive at any time

Description

Property information & downloads

Key features

Material information

Key Information Document Floor plan
Local area information
My Places Include travel time from key places

You can add locations as 'My Places' and save them to your account. These are locations you wish to commute to and from, and you can specify the maximum time of the commute and by which transport method.

L&Q Group
Disclaimer
The information displayed about this property comprises a property advertisement. Share to Buy Ltd makes no warranty as to the accuracy or completeness of the advertisement or any linked or associated information, and Share to Buy has no control over the content. This property advertisement does not constitute property particulars. The information is provided and maintained by the sponsoring housing association. Please contact the housing association or estate agent directly to obtain any information which may be available under the terms of The Energy Performance of Buildings (Certificates and Inspections) (England and Wales) Regulations 2007.
Sign in to enquire
Monthly cost calculator
£87,000 Shared Ownership Resale Full price £290,000
Estimated monthly cost £1,248
£

How is this calculated?

Send enquiry to the seller