Available

£102,000

Arden House, 52-54 Thurston Road, SE13 7GT
Share 30% / Full price £340,000 / Min deposit £10,200

Apartment
1 bedroom
Not specified

Sign in to view phone number Sign in
Sign in to email housing provider Sign in

Monthly cost calculator


Summary

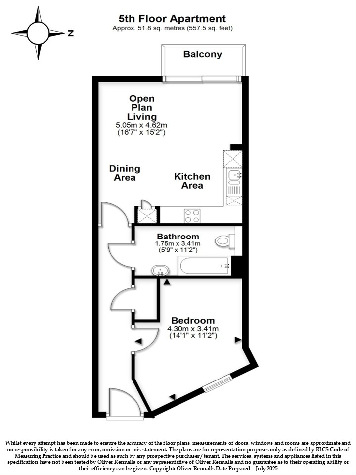
A fantastic 1-bedroom apartment with a private balcony and access to a communal playground now available in Lewisham.

Eligibility
You may be eligible for this property if: -You must be at least 18 years old -Your annual household income must be less than £90,000 -You are unable to purchase a suitable home to meet your housing needs on the open market -You should generally be a first time buyer. If you already own a property, you must be in the process of selling or have already sold it before you can apply Please note that applicants will be expected to purchase the maximum share that is sustainable for them.
Description

Property reference number: 1639832

 

This modern development is perfectly positioned just a short walk from Elverson Road DLR and Lewisham Station, offering seamless connectivity to Canary Wharf, the City, and Central London. Whether you're commuting for work or exploring the capital, direct links to London Bridge, Charing Cross, and Bank make this an exceptional location for city professionals and frequent travellers alike.

 

Residents of Arden House benefit from an abundance of local amenities right on their doorstep. Major supermarkets including Asda, Tesco, and Sainsbury’s are all within easy walking distance, making everyday shopping incredibly convenient. The surrounding area is home to a lively mix of bars and restaurants, catering to every taste—from casual cafes and traditional pubs to international cuisine from around the world. For those who enjoy green space, Brookmill Park and Hilly Fields are both nearby, offering beautiful spots for relaxation, jogging, or weekend picnics.

 

Closest stations: Elverson Road DLR (0.1 miles), Lewisham (0.3 miles)

Bus routes nearby: 21, 321, 47, 225, 436, 136

 

Key features: 

- Communal playground 

- Private balcony 

- Open plan living 

- Secured bike storage 

- Fitted wardrobe 

- Lift access 

 

Financial information 
Tenure: Leasehold 
Remaining lease term: 115 years 
Annual ground rent amount: £250
Ground rent review period: 25 years  
Annual service charge amount: £2,568.00
Service charge review period: Annually 
Council tax band: B
 
*Financial information correct as of 21/07/2025

Description

Property information & downloads

Material information

Floor plan Energy Certificate
Local area information
My Places Include travel time from key places

You can add locations as 'My Places' and save them to your account. These are locations you wish to commute to and from, and you can specify the maximum time of the commute and by which transport method.

Disclaimer
The information displayed about this property comprises a property advertisement. Share to Buy Ltd makes no warranty as to the accuracy or completeness of the advertisement or any linked or associated information, and Share to Buy has no control over the content. This property advertisement does not constitute property particulars. The information is provided and maintained by the sponsoring housing association. Please contact the housing association or estate agent directly to obtain any information which may be available under the terms of The Energy Performance of Buildings (Certificates and Inspections) (England and Wales) Regulations 2007.
Sign in to view phone number Sign in
Sign in to email housing provider Sign in
Monthly cost calculator
£102,000 Shared Ownership Resale Full price £340,000
Estimated monthly cost £1,227
£

How is this calculated?

Send enquiry to the seller