Under Offer

£48,750

Crest Nicholson at Perrybrook | Drake Gardens, GL3 4ZR
Share 25% / Full price £195,000 / Min deposit £2,438

Apartment
2 bedrooms
1 bathroom

Bromford
0800 0476 330
Sign in to enquire

Monthly cost calculator


Summary

The Hawker two-bedroom apartment combines modern living with a smart, practical design, making it an ideal choice for young professionals, couples, and first-time buyers...

Eligibility

You can apply to buy the home if all of the following apply:

  • your household income is £90,000 or less
  • you cannot afford all of the deposit and mortgage payments to buy a home that meets your needs

One of the following must also be true:

  • you're a first-time buyer
  • you used to own a home but cannot afford to buy one now
  • you're forming a new household - for example, after a relationship breakdown
  • you're an existing shared owner, and you want to move
  • you own a home and want to move but cannot afford to buy a new home for your needs

If you own a home, you must have completed the sale of the home on or before the date you complete your shared ownership purchase.

As part of your application, your finances and credit history will be assessed to ensure that you can afford and sustain the rental and mortgage payments.

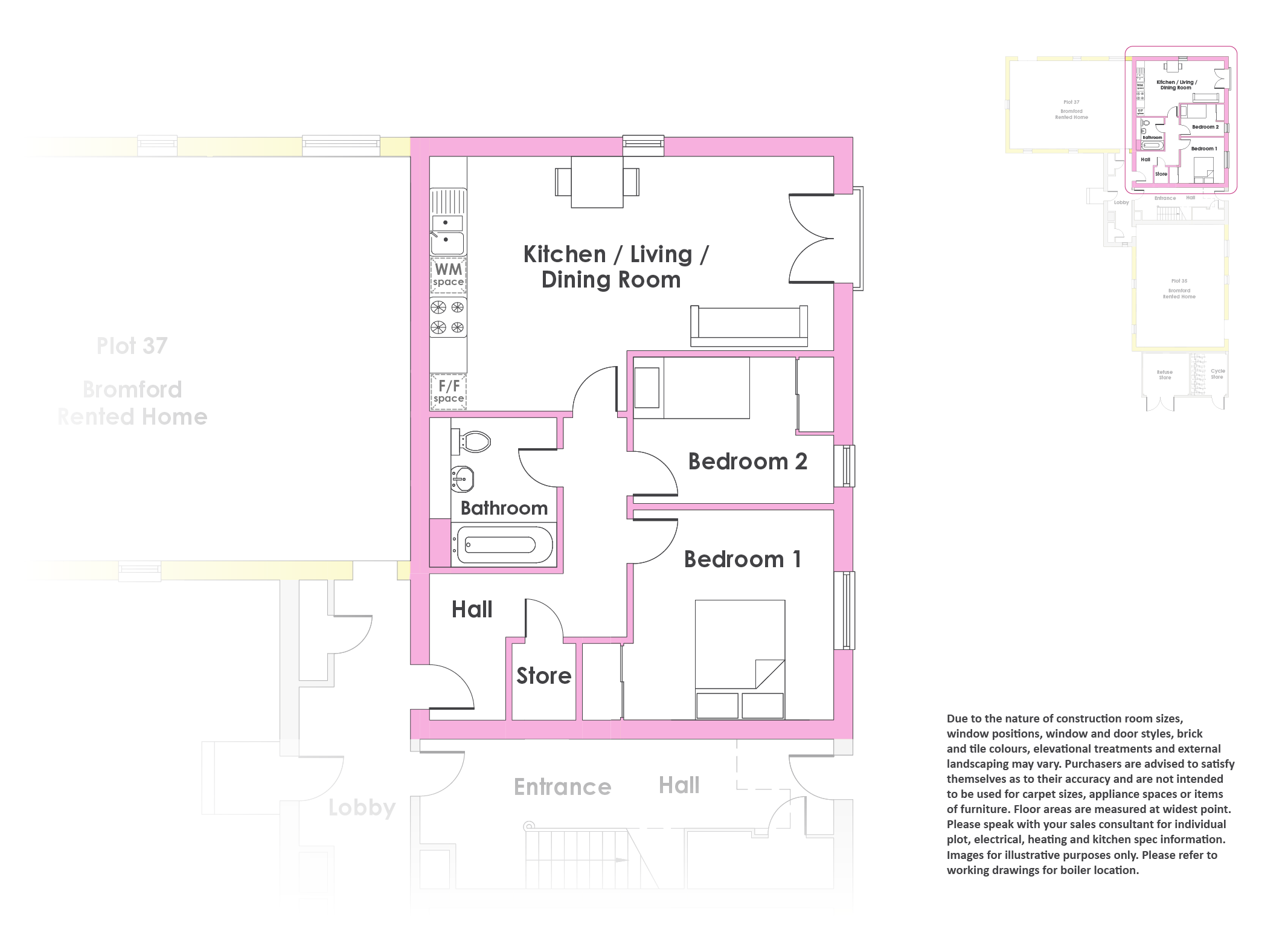
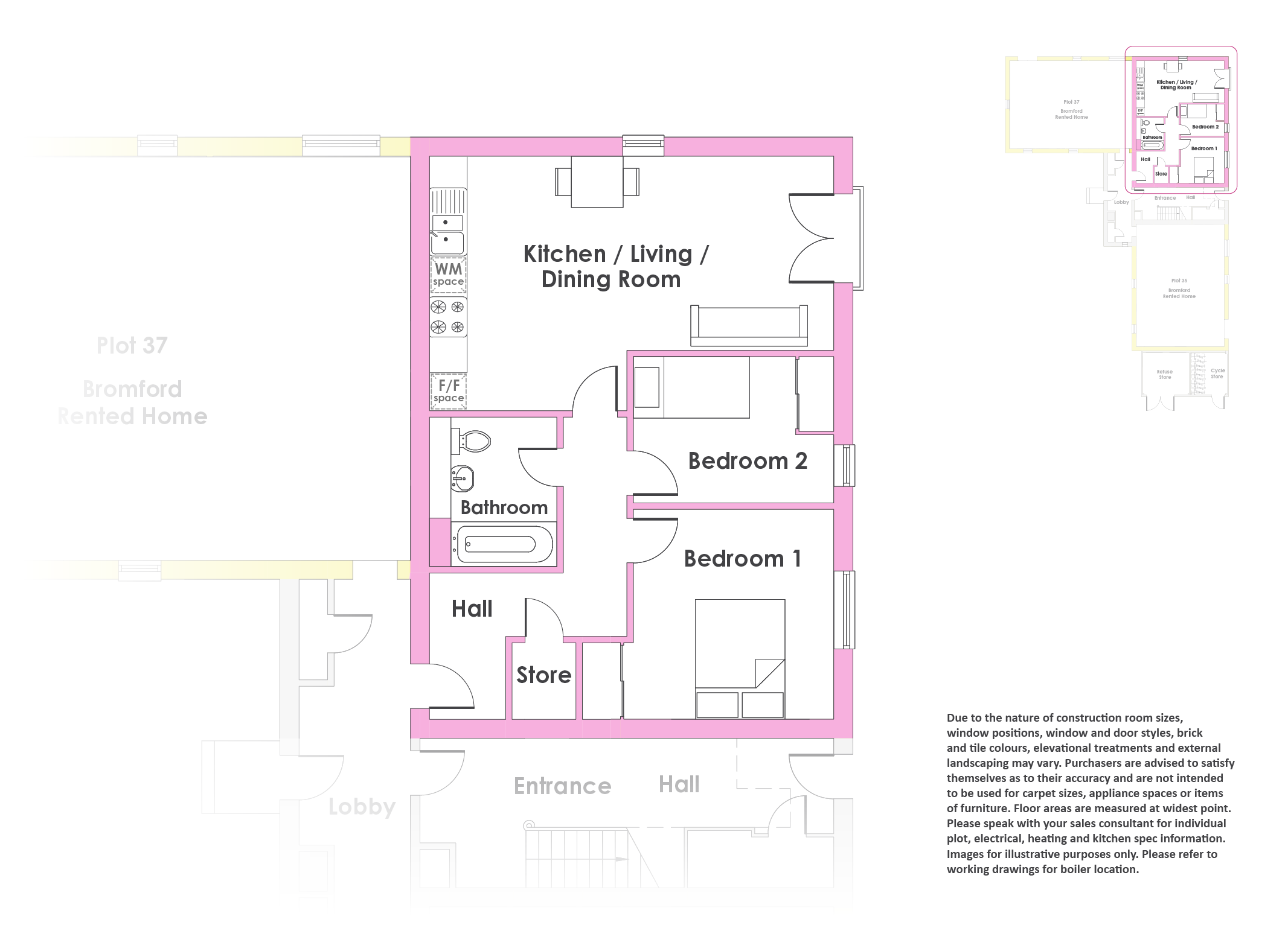
Description

The Hawker two-bedroom apartment combines modern living with a smart, practical design, making it an ideal choice for young professionals, couples, and first-time buyers eager to step onto the property ladder.

Upon entering through the lobby, you're welcomed into a hallway that leads to an open-plan kitchen, dining, and lounge area. The fully-fitted kitchen, equipped with an integrated oven, hob, and extractor hood, is perfect for preparing meals and entertaining visitors. The lounge provides a cosy retreat for relaxing in after a long day, with double-doors opening to a Juliet balcony, inviting plenty of natural light to fill the room.

Back through the hallway, you'll discover a double bedroom offering the perfect escape for a peaceful night's sleep. A single bedroom can be accessed from the hallway and can easily be transformed into a home office, guest room, or nursery, adapting to your needs.

A modern bathroom completes the apartment, and each home benefits from allocated parking.

The apartment block also includes a dedicated refuse area and secure cycle storage.

If you're ready to make The Hawker apartment your home, our friendly sales team is here to assist you.

  • Full house price: £195,000
  • Minimum share of 40%
  • 40% share value £78,000*
  • 5% minimum deposit

*Share prices and purchases can range between 25%-75%, the above 40% is an average purchase percentage. Terms and conditions apply, please ask for details. Prices correct at time of publication.

Disclaimer:
*Computer-generated images and photography are intended for illustrative purposes only and may not represent the actual fittings and furnishings at the development. Images are of typical elevations and may vary. Please speak to an advisor for more information.

Description

Property information & downloads

Key features

Material information

Floor plan
Local area information
My Places Include travel time from key places

You can add locations as 'My Places' and save them to your account. These are locations you wish to commute to and from, and you can specify the maximum time of the commute and by which transport method.

Disclaimer
The information displayed about this property comprises a property advertisement. Share to Buy Ltd makes no warranty as to the accuracy or completeness of the advertisement or any linked or associated information, and Share to Buy has no control over the content. This property advertisement does not constitute property particulars. The information is provided and maintained by the sponsoring housing association. Please contact the housing association or estate agent directly to obtain any information which may be available under the terms of The Energy Performance of Buildings (Certificates and Inspections) (England and Wales) Regulations 2007.
Sign in to enquire
Monthly cost calculator
£48,750 Shared Ownership New Build Full price £195,000
Estimated monthly cost £694
£

How is this calculated?

Send enquiry to the seller