Available

£147,000

Malling Way, Southbourne, PO10 8GN
Share 60% / Full price £245,000 / Min deposit £7,350

Apartment
2 bedrooms
1 bathroom

Available on Shared Ownership resale | Enquire today
Sign in to enquire

Monthly cost calculator


Summary

Discover this spacious first floor apartment with a Juliette balcony and parking near Emsworth.

Eligibility

You may be eligible for this property if:

  • You have a gross household income of no more than £80,000 per annum.
  • You are unable to purchase a suitable home to meet your housing needs on the open market.
  • You do not already own a home or you will have sold your current home before you purchase or rent.
Description

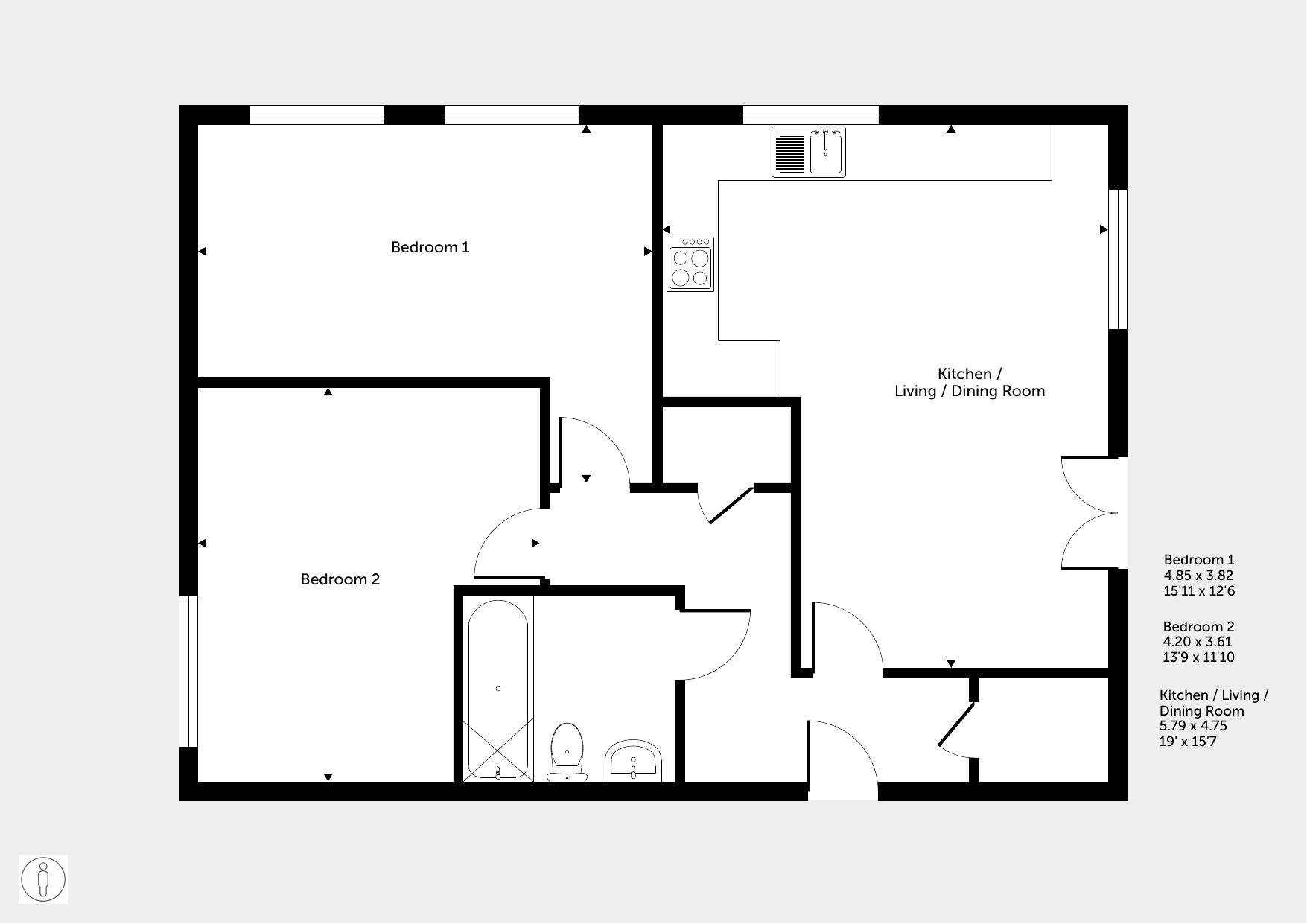
This two bedroom, first floor apartment is in Southbourne, Emsworth. Parking provided! Available on Shared Ownership resale, you could buy with just a 5% deposit.

Featuring an open-plan living area, with doors to your Juliette balcony. The kitchen is fitted with an oven, gas hob and hood.

There are two comfortable bedrooms. The bathroom has a modern, white suite. You'll also have your own parking space.

Please note a local connection to Chichester District Council is required. This could mean living, working or having family living in the area.

Description

Property information & downloads

Key features

Material information

Key Information Document Floor plan Energy Certificate
Local area information
My Places Include travel time from key places

You can add locations as 'My Places' and save them to your account. These are locations you wish to commute to and from, and you can specify the maximum time of the commute and by which transport method.

Disclaimer
The information displayed about this property comprises a property advertisement. Share to Buy Ltd makes no warranty as to the accuracy or completeness of the advertisement or any linked or associated information, and Share to Buy has no control over the content. This property advertisement does not constitute property particulars. The information is provided and maintained by the sponsoring housing association. Please contact the housing association or estate agent directly to obtain any information which may be available under the terms of The Energy Performance of Buildings (Certificates and Inspections) (England and Wales) Regulations 2007.
Sign in to enquire
Monthly cost calculator
£147,000 Shared Ownership Resale Full price £245,000
Estimated monthly cost £1,182
£

How is this calculated?

Send enquiry to the seller