Available

£122,500

Britain's Apartments, , E17 6BH
Share 35% / Full price £350,000 / Min deposit £12,250

Apartment
1 bedroom
1 bathroom

L&Q Group
0330 038 6486 Ext 5167
Sign in to enquire

Monthly cost calculator


Summary

Private Balcony, Good EPC RatingMake this home your own, enjoy a £500 B&Q Voucher on completion*

Description

*** If you would like to arrange a viewing for this property please click the link to register your interest online. If you have an eligible Shared Ownership application with L&Q, you will be sent the sellers contact information to arrange a viewing ***

Shared Ownership

Full Market Value: £350,000

Share Value (35%): £122,500

Monthly Rent: £719.87

Service Charge: £142.08

Council Tax Band: B

125 year lease commenced April 2017 - 116 years remaining

EWS1 Certification is available for this property - B1 Rating

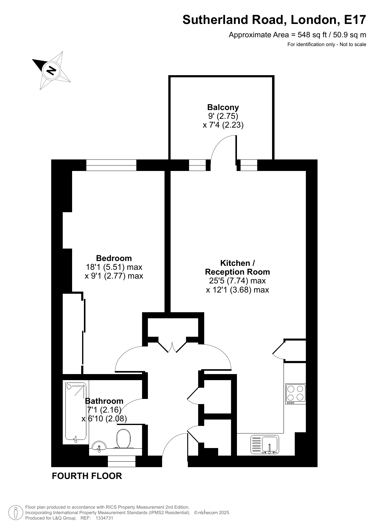
Offered for sale is this well presented one bedroom fourth floor apartment. Accessed via a well kept communal entrance, there is a large, open-plan kitchen/living/dining space leading directly on to a balcony to the rear. There is a double bedroom, in addition to a contemporary family bathroom.

This property benefits from a sinking fund. A sinking fund is a long-term savings plan that leaseholders contribute to every month through service charges. This is used to pay for major works that are required, such as replacing a roof.

Ideally situated in the heart of Walthamstow, Britain's Apartments offers contemporary living in one of East London's most exciting and fast-evolving neighbourhoods. Set within a vibrant community, this modern development is just moments from a variety of local amenities, green spaces, and excellent transport links.

Walthamstow is known for its unique blend of creativity, culture, and connectivity. From Britain's Apartments, residents can easily access the lively Walthamstow Village, with its charming pubs, artisan coffee shops, and independent boutiques. Just a short walk away, The Mall Walthamstow and Crate St James Street provide further shopping, dining, and leisure options.

Nature lovers will appreciate proximity to the Walthamstow Wetlands and Lloyd Park, offering peaceful escapes, walking trails, and open green space-ideal for outdoor relaxation and recreation.

Commuters are well-served by Walthamstow Central Station, offering Victoria Line and Overground services for quick journeys into Central London, the West End, and beyond. Several bus routes and cycling paths also ensure easy local travel.

With a rich mix of heritage, creativity, and community spirit, Walthamstow continues to attract professionals, young families, and investors looking for a well-connected London location with a strong sense of identity.

The buyer will require a deposit to obtain a mortgage for this property.

To meet the requirements for this property we require as a guideline, a minimum household income of £52,882. If you are offered the home, your ability to afford this property will be assessed at your financial interview. Please note that applicants should purchase the maximum share that they can afford and sustain.

Only applicants who are registered with London and Quadrant will be eligible to be offered a property in one of our schemes. If you are not registered please visit our website www.lqhomes.com and register to obtain your unique reference number.

Your home is at risk if you fail to keep up repayments on a mortgage, rent or other loan secured on it. Please make sure you can afford the repayments before you take out a mortgage.

These particulars are of opinion only, are intended to give a fair description and do not form the basis of a contract. The descriptions and all other information are believed to be correct as of August 2025.

*The £500 B&Q Voucher is currently being offered on this resale property for a limited time and is applicable to any Shared Ownership purchase that completes a reservation on or before 31st August 2025 and then completes on the sale before 31st December 2025. The voucher will be supplied within 75 days of completion of the purchase and will be an E-Voucher, issued by email to the Sole or Primary Purchaser. Further terms and conditions may be in place from the voucher provider, and it is the purchaser's responsibility to satisfy themselves of any terms applicable. The voucher cannot be offset against any fees or monies due from the purchase. L&Q will not be responsible for direct payments to any lenders, or third parties. L&Q reserve the right to remove an incentive at any time.

Description

Property information & downloads

Key features

Material information

Key Information Document Floor plan
Local area information
My Places Include travel time from key places

You can add locations as 'My Places' and save them to your account. These are locations you wish to commute to and from, and you can specify the maximum time of the commute and by which transport method.

L&Q Group
Disclaimer
The information displayed about this property comprises a property advertisement. Share to Buy Ltd makes no warranty as to the accuracy or completeness of the advertisement or any linked or associated information, and Share to Buy has no control over the content. This property advertisement does not constitute property particulars. The information is provided and maintained by the sponsoring housing association. Please contact the housing association or estate agent directly to obtain any information which may be available under the terms of The Energy Performance of Buildings (Certificates and Inspections) (England and Wales) Regulations 2007.
Sign in to enquire
Monthly cost calculator
£122,500 Shared Ownership Resale Full price £350,000
Estimated monthly cost £1,470
£

How is this calculated?

Send enquiry to the seller