Available

£84,000

Kiln Nook | Plot 6, Bottle Kiln Drive, ST6 3AZ
Share 40% / Full price £210,000 / Min deposit £4,200

House
2 bedrooms
1 bathroom

Start 2026 in your dream home!
Sign in to view phone number Sign in
Sign in to email housing provider Sign in

Monthly cost calculator


Summary

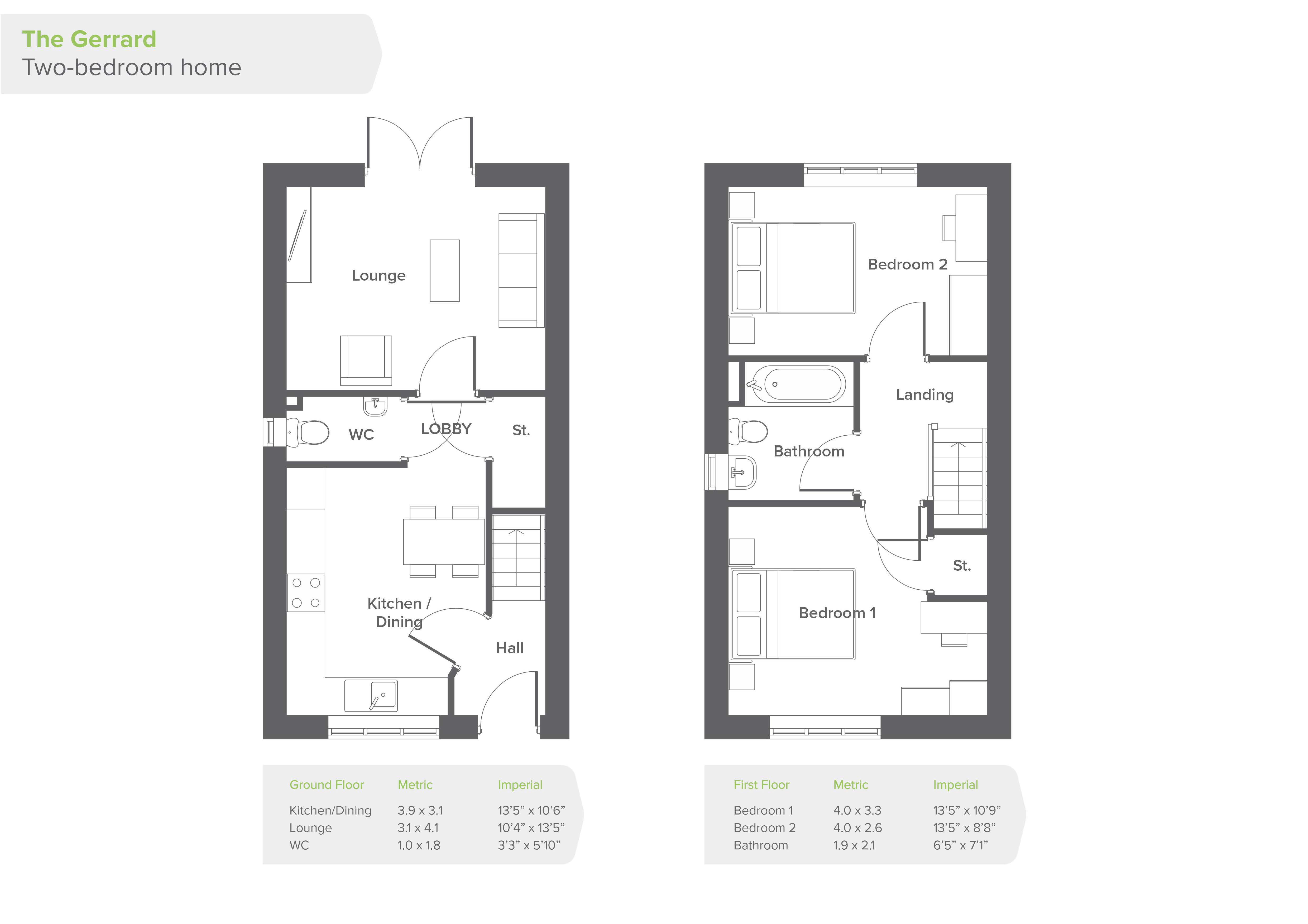
Welcome to The Gerrard plot 6 at Kiln Nook, a stylish two-bedroom, semi-detached property, perfect for first time buyers to call home.

Eligibility

You may be eligible for this property if:

  • You have a gross household income of no more than £80,000 per annum.
  • You are unable to purchase a suitable home to meet your housing needs on the open market.
  • You do not already own a home or you will have sold your current home before you purchase or rent.
Description

Last available two-bed plot on site - act now to secure this stunning home!

The ground floor of this stylish new home features an open plan kitchen/dining room including an integrated fridge freezer and electric oven. Head towards the rear of the house to find a spacious lounge with access to the turfed rear garden through a set of patio doors, perfect for those summer barbecues! There is also a handy downstairs W.C and storage cupboard.

Upstairs consists of a good-sized master bedroom with its own separate storage space, plus a second double bedroom. The contemporary three-piece family bathroom contains an over-bath shower, heated towel rail, plus designer taps and tiling.

Each property benefits from solar panels, EV charging points and off street parking.

*Disclaimer: Please note that all images are an artist's impression and for illustrative purposes only.*

Prices:

40% share - £84,000

Monthly rent on remaining share (60%) - £288.75

50% share - £105,000

Monthly rent on remaining share (50%) - £240.63

75% share - £157,500

Monthly rent on remaining share (25%) - £120.31

Additional charges (pcm):

Service Charge - £30.35

Management Fee - £14.19

Buildings Insurance - £22.75

Detailed specification:

General:

  • Double glazing
  • Off street parking
  • Energy efficient appliances
  • Vinyl flooring to bathrooms and W.C.
  • Patio doors
  • EV charging points to all houses
  • Solar panels to all houses
  • Turfed rear gardens.

Kitchen:

  • Symphony cabinet and worktops
  • Electric oven and hob
  • Cooker hood
  • Integrated fridge freezer
  • A-rated gas combi boiler
  • LED downlighters.

Bathroom:

  • Contemporary three-piece bathroom suite
  • Heated towel rail
  • Contemporary tiles
  • Designer taps

Living:

  • Telephone and broadband internet sockets
  • TV sockets.

Description

Property information & downloads

Key features

Material information

Key Information Document Floor plan Brochure
Local area information
My Places Include travel time from key places

You can add locations as 'My Places' and save them to your account. These are locations you wish to commute to and from, and you can specify the maximum time of the commute and by which transport method.

Disclaimer
The information displayed about this property comprises a property advertisement. Share to Buy Ltd makes no warranty as to the accuracy or completeness of the advertisement or any linked or associated information, and Share to Buy has no control over the content. This property advertisement does not constitute property particulars. The information is provided and maintained by the sponsoring housing association. Please contact the housing association or estate agent directly to obtain any information which may be available under the terms of The Energy Performance of Buildings (Certificates and Inspections) (England and Wales) Regulations 2007.
Sign in to view phone number Sign in
Sign in to email housing provider Sign in
Monthly cost calculator
£84,000 Shared Ownership New Build Full price £210,000
Estimated monthly cost £775
£

How is this calculated?

Send enquiry to the seller