Available

£285,000

L&Q at Darwin Green | Beagle Road, Cambridge, CB3 0YJ
Share 50% / Full price £570,000 / Min deposit £28,500

House
3 bedrooms
1 bathroom

Exclusive offers available*!
L&Q
02077682131
Sign in to enquire

Monthly cost calculator


Summary

Exclusive offers available!* Discover Plot 197 - a contemporary 3 bedroom detached house with solar panels, an EV charging point and a bike shed. This property also boast...

Description

Reserve a selected Shared Ownership home between 1 - 30 November and receive a £1,000 One4All voucher, plus your new home will come fully furnished at no additional cost!*

Available to reserve now - 3 bedroom Shared Ownership houses in Cambridge!

Plot 197 - £285,000 for a 50% share. Full market value of £570,000.

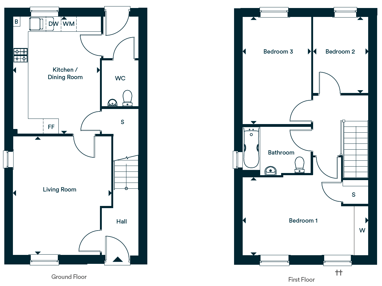
Plot 197 is a stunning 3 bedroom detached house with a separate kitchen/dining room with integrated appliances fitted as standard. Offering a light and airy living room, perfect for a family. Three generously sized carpeted bedrooms with a fitted wardrobe in bedroom one. Ample storage space throughout with lighting. Including solar panels, a car charging point and a bike shed.

  • Living Room - 4.95m x 3.86m / 16' 2" x 12' 7"
  • Kitchen / Dining Room - 4.62m x 3.42m / 15' 2" x 11' 3"
  • Bedroom 1 - 4.96m x 3.05m / 16' 3" x 10' 0"
  • Bedroom 2 - 3.00m x 2.17m / 9' 8" x 7' 1"
  • Bedroom 3 - 4.23m x 2.70m / 13' 10" x 8' 10"
  • Total - 94 m2 / 1,008 ft2

Plot 197 - £285,000 for a 50% share. Full market value of £570,000.

About the development

Darwin Green is a whole new community that will provide residents with essential services such as schools, shops and health care all situated in a central square, where you'll be able to stroll to The Square for your daily needs. And for the essential fresh air or dog walks, Darwin Green's Central Parks offers 15 acres of open space to be enjoyed. With 80 miles of designated lanes and routes, a quarter of all journeys to work in the city are now made on two wheels. Whether it's cycling to work, university or the station getting round Cambridge on bike couldn't be simpler.

The journey to the station itself takes 15 minutes* by bicycle! The commute to London can be achieved in just over an hour* following a 50 minute* train journey to London Kings Cross.

All homes will be finished to a fully-inclusive specification throughout with flooring and integrated appliances included as standard. All homes are covered by a 12 year NHBC warranty and inclusive of a 2 year L&Q New Homes warranty.


https://lqhomes.com/darwingreen/register-interest/">Register your interest

To be kept up to date with any news about this new development and further information on our available homes.

Please note all applicants are required to register with L&Q for Shared Ownership.

*CGIs are representative of the development. Images used are of a typical L&Q show home.

L&Q terms and conditions apply. *Incentive terms and conditions apply. Offer is available on selected Shared Ownership properties only. Incentive amount is based on the property type and development. For full terms and conditions visit href="https://lqhomes.com/terms-and-conditions/">lqhomes.com/terms-and-conditions. Shared Ownership terms and conditions apply. Prices start from £136,500 for a 30% share of a 2 bedroom house at L&Q at Darwin Green. Full market value of £455,000. Please visit href="https://eur03.safelinks.protection.outlook.com/?url=https%3A%2F%2Fpublic-gbr.mkt.dynamics.com%2Fapi%2Forgs%2F7ef9c521-1823-4862-ba42-4213c93cb9f0%2Fr%2Fmk89cJVw9UiybkuRToNtlxAAAAA%3Ftarget%3D%257B%2522TargetUrl%2522%253A%2522https%25253A%25252F%25252Flqhomes.com%25252Fshared-ownership%2522%252C%2522RedirectOptions%2522%253A%257B%25225%2522%253Anull%252C%25221%2522%253Anull%252C%25222%2522%253A%257B%2522utm_source%2522%253A%2522Dynamics%2520365%2520Customer%2520Insights%2520-%2520Journeys%2522%252C%2522utm_medium%2522%253A%2522email%2522%252C%2522utm_term%2522%253A%2522N%252FA%2522%252C%2522utm_campaign%2522%253A%2522%2522%252C%2522utm_content%2522%253A%2522%255BOutbound%255D%2520New%2520Year%2520Campaign%2520Mailer%252024%2520-%252026.12.24%2522%257D%257D%257D%26digest%3DwM1m45InVmbaT6siX8tdgYo506mhHbZjNk4pmrACbys%253D%26secretVersion%3Da6751a3a834744298598bfc7d73b336f&data=05%7C02%7Cashleighmikhail%40lqgroup.org.uk%7C4cf5db70cc1c4aaebd6f08dde1542166%7C98d94a17168648bdb71287295b8149d5%7C0%7C0%7C638914474130493488%7CUnknown%7CTWFpbGZsb3d8eyJFbXB0eU1hcGkiOnRydWUsIlYiOiIwLjAuMDAwMCIsIlAiOiJXaW4zMiIsIkFOIjoiTWFpbCIsIldUIjoyfQ%3D%3D%7C0%7C%7C%7C&sdata=KnZvMAu8BAjVcN6PWxx899wmBTKDuP68Xzf9oQCnLKk%3D&reserved=0 for more information. Times obtained from Google Maps.

Description

Property information & downloads

Key features

Material information

Floor plan
Local area information
My Places Include travel time from key places

You can add locations as 'My Places' and save them to your account. These are locations you wish to commute to and from, and you can specify the maximum time of the commute and by which transport method.

Disclaimer
The information displayed about this property comprises a property advertisement. Share to Buy Ltd makes no warranty as to the accuracy or completeness of the advertisement or any linked or associated information, and Share to Buy has no control over the content. This property advertisement does not constitute property particulars. The information is provided and maintained by the sponsoring housing association. Please contact the housing association or estate agent directly to obtain any information which may be available under the terms of The Energy Performance of Buildings (Certificates and Inspections) (England and Wales) Regulations 2007.
Sign in to enquire
Monthly cost calculator
£285,000 Shared Ownership New Build Full price £570,000
Estimated monthly cost £2,088
£

How is this calculated?

Send enquiry to the seller