Available

£87,500

45 Aston Street, Limehouse, , E14 7UP
Share 25% / Full price £350,000 / Min deposit £8,750

Apartment
1 bedroom
1 bathroom

L&Q Group
0330 038 6486 Ext 5167
Sign in to enquire

Monthly cost calculator


Summary

One bedroom apartment on the Ocean Estate Development.A £500 Amazon Voucher on Completion*

Description

SHARED OWNERSHIP

Full Market Value - £350,000

You Pay (25%) - £87,500

Monthly Rent - £817.70

Service Charge - £297.24

Annual Ground Rent - TBC

Council Tax Band: C

150 year lease commenced in March 2019 - 143 years remaining

EWS1 certification available for this block - A2 rating

A £500 Amazon Voucher on Completion*

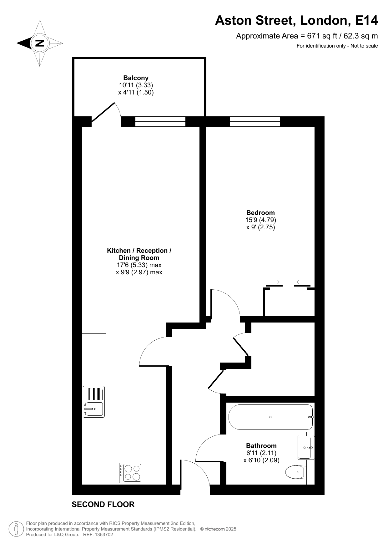
This apartment consists of an open-plan kitchen and living area, flooded with natural light from floor-to-ceiling windows, opening onto a private east facing balcony. The kitchen is fitted with oak effect wall and base units, with stylish under-cupboard lighting, and a white gloss work surface and benefits from integrated appliances including a fridge freezer, double oven, hob, and extractor fan. The bedroom has built in storage and the contemporary bathroom comes complete with a white three-piece suite with a shower over the bath. The apartment also has a walk in storage/utility cupboard.

Located by Whitehorse Open Space, Mile End Park, Stepney Green and Limehouse Basin are all within close proximity offering an escape from urban pace. Limehouse station is just minutes away providing regular access into the City, Canary Wharf and beyond via the DLR and C2C.

The buyer will require a deposit to obtain a mortgage for this property.

To meet the requirements for this property we require as a guideline, a minimum household income of £56,221. If you are offered the property, your ability to afford this property will be assessed at your financial interview. Please note that applicants should purchase the maximum share that they can afford and sustain.

Only applicants who are registered with London and Quadrant will be eligible to be offered a property in one of our schemes. If you are not registered please visit our website www.lqhomes.com and register to obtain your unique reference number.

Your home is at risk if you fail to keep up repayments on a mortgage, rent or other loan secured on it. Please make sure you can afford the repayments before you take out a mortgage.

These particulars are of opinion only, are intended to give a fair description and do not form the basis of a contract. The descriptions and all other information are believed to be correct as of September 2025.

*The £500 Amazon Voucher is currently being offered on this resale property for a limited time and is applicable to any Shared Ownership purchase that completes a reservation on or before 31st October 2025, and then completes on the sale before 31st January 2026. The voucher will be supplied within 75 days of completion of the purchase and will be an E-Voucher, issued by email to the Sole or Primary Purchaser. Further terms and conditions may be in place from the voucher provider, and it is the purchaser's responsibility to satisfy themselves of any terms applicable. The voucher cannot be offset against any fees or monies due from the purchase. L&Q will not be responsible for direct payments to any lenders, or third parties. L&Q reserve the right to remove an incentive at any time.

Description

Property information & downloads

Key features

Material information

Key Information Document Floor plan
Local area information
My Places Include travel time from key places

You can add locations as 'My Places' and save them to your account. These are locations you wish to commute to and from, and you can specify the maximum time of the commute and by which transport method.

L&Q Group
Disclaimer
The information displayed about this property comprises a property advertisement. Share to Buy Ltd makes no warranty as to the accuracy or completeness of the advertisement or any linked or associated information, and Share to Buy has no control over the content. This property advertisement does not constitute property particulars. The information is provided and maintained by the sponsoring housing association. Please contact the housing association or estate agent directly to obtain any information which may be available under the terms of The Energy Performance of Buildings (Certificates and Inspections) (England and Wales) Regulations 2007.
Sign in to enquire
Monthly cost calculator
£87,500 Shared Ownership Resale Full price £350,000
Estimated monthly cost £1,549
£

How is this calculated?

Send enquiry to the seller