Available

£90,750

Rockcliffe Square, Shared Ownership | 95 Plumstead Road, London, SE18 7DQ
Share 25% / Full price £363,000 / Min deposit £9,075

Apartment
1 bedroom
1 bathroom

Exclusive offers available*!
Sign in to view phone number Sign in
Sign in to email housing provider Sign in

Monthly cost calculator


Summary

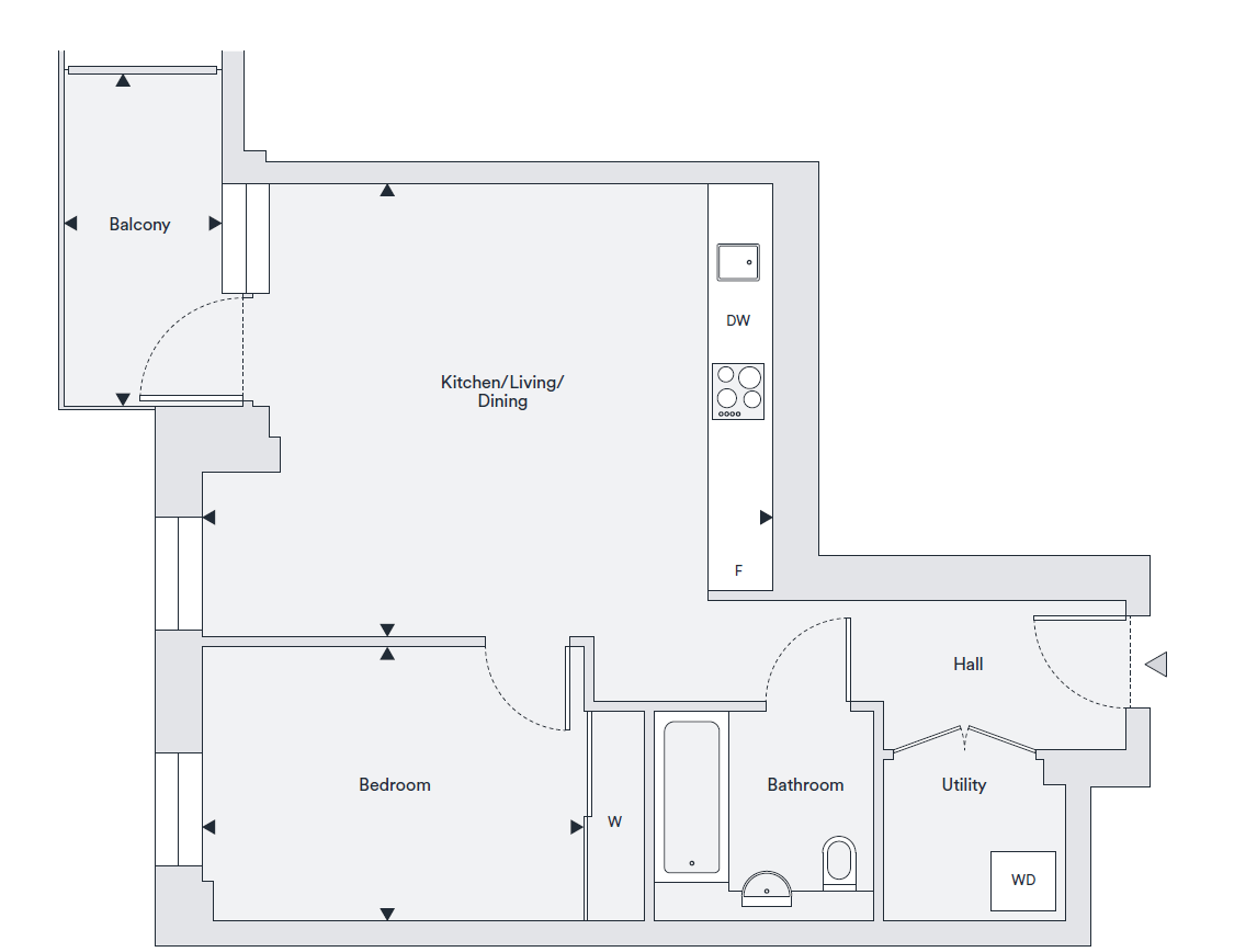
Exclusive offers available!* 1 bedroom, 1 bathroom, 5th floor apartment offering 50.6 sq.m of internal floor area with a private balcony. 

Description

Reserve a selected Shared Ownership home between 1 September - 11 October with a £99 reservation fee, plus receive £2,000 towards buying costs*

Plot 33

1 bedroom, 1 bathroom, 5th floor apartment offering 50.6 sq.m of internal floor area with outdoor space.Boasting an open-plan kitchen/living/dining area with Bosch integrated appliances alongside a double bedroom with a fitted wardrobe.

Full Market Value: £363,000

Shared Value (25%): £90,750

Minimum deposit: £9,070

Required income: £46,000

Council tax band: TBC

Discover Rockcliffe Square. A brand new collection of Manhattan Studios, 1, 2 and 3 bedroom apartments in the Royal Borough of Greenwich, situated between buzzy, cultured Woolwich and up-and-coming Plumstead, just a stroll away from the Thames.

Ideally located close to 3 train stations including Plumstead, Woolwich and Woolwich Arsenal offering the Elizabeth line, National Rail and DLR.

What is Shared Ownership?

Shared Ownership is for anyone who doesn't currently own a home. If you want to get on the property ladder, but can't afford to buy outright on the open market, then Shared Ownership could be for you. Under the Shared Ownership scheme you part-buy/part-rent your home, making it possible for first-time buyers and families to get on the property ladder.

The minimum share you can purchase is 25% and the maximum is 75%. You will usually pay a mortgage on the part you own and a subsidised rent on the part you don't own. As your income rises, you can increase the share you own until you eventually own 100%.

Register your interest today: lqhomes.com/rockcliffesquare

*Initially priority will be given to local people who are eligible applicants earning up to £71,000 for a Manhattan Studio, 1 & 2 bedroom apartment and £88,000 for a 3 bedroom. This is expected to apply for the first three months following launch. If your income exceeds these thresholds, please register your details and we will contact you if these restrictions are lifted in the future.

Imagery depicts development show home photography. CGI for illustrative purposes only.

L&Q terms and conditions apply. *Incentive terms and conditions apply. Offer is available on selected Shared Ownership properties only. Incentive amount is based on the property type and development. For full terms and conditions visit https://lqhomes.com/terms-and-conditions/">lqhomes.com/terms-and-conditions. Shared Ownership terms and conditions apply. Prices start from £73,188 for a 25% share of a Manhattan Studio apartment at Rockcliffe Square. Full market value of £292,750. Please visit href="https://eur03.safelinks.protection.outlook.com/?url=https%3A%2F%2Fpublic-gbr.mkt.dynamics.com%2Fapi%2Forgs%2F7ef9c521-1823-4862-ba42-4213c93cb9f0%2Fr%2Fmk89cJVw9UiybkuRToNtlxAAAAA%3Ftarget%3D%257B%2522TargetUrl%2522%253A%2522https%25253A%25252F%25252Flqhomes.com%25252Fshared-ownership%2522%252C%2522RedirectOptions%2522%253A%257B%25225%2522%253Anull%252C%25221%2522%253Anull%252C%25222%2522%253A%257B%2522utm_source%2522%253A%2522Dynamics%2520365%2520Customer%2520Insights%2520-%2520Journeys%2522%252C%2522utm_medium%2522%253A%2522email%2522%252C%2522utm_term%2522%253A%2522N%252FA%2522%252C%2522utm_campaign%2522%253A%2522%2522%252C%2522utm_content%2522%253A%2522%255BOutbound%255D%2520New%2520Year%2520Campaign%2520Mailer%252024%2520-%252026.12.24%2522%257D%257D%257D%26digest%3DwM1m45InVmbaT6siX8tdgYo506mhHbZjNk4pmrACbys%253D%26secretVersion%3Da6751a3a834744298598bfc7d73b336f&data=05%7C02%7Cashleighmikhail%40lqgroup.org.uk%7C4cf5db70cc1c4aaebd6f08dde1542166%7C98d94a17168648bdb71287295b8149d5%7C0%7C0%7C638914474130493488%7CUnknown%7CTWFpbGZsb3d8eyJFbXB0eU1hcGkiOnRydWUsIlYiOiIwLjAuMDAwMCIsIlAiOiJXaW4zMiIsIkFOIjoiTWFpbCIsIldUIjoyfQ%3D%3D%7C0%7C%7C%7C&sdata=KnZvMAu8BAjVcN6PWxx899wmBTKDuP68Xzf9oQCnLKk%3D&reserved=0 for more information.

Description

Property information & downloads

Key features

Material information

Floor plan
Local area information
My Places Include travel time from key places

You can add locations as 'My Places' and save them to your account. These are locations you wish to commute to and from, and you can specify the maximum time of the commute and by which transport method.

Disclaimer
The information displayed about this property comprises a property advertisement. Share to Buy Ltd makes no warranty as to the accuracy or completeness of the advertisement or any linked or associated information, and Share to Buy has no control over the content. This property advertisement does not constitute property particulars. The information is provided and maintained by the sponsoring housing association. Please contact the housing association or estate agent directly to obtain any information which may be available under the terms of The Energy Performance of Buildings (Certificates and Inspections) (England and Wales) Regulations 2007.
Sign in to view phone number Sign in
Sign in to email housing provider Sign in
Monthly cost calculator
£90,750 Shared Ownership New Build Full price £363,000
Estimated monthly cost £1,320
£

How is this calculated?

Send enquiry to the seller