Available

£64,000

Twigworth Green | Blackthorn Road, GL2 9JR
Share 40% / Full price £160,000 / Min deposit £3,200

Apartment
1 bedroom
1 bathroom

Sign in to view phone number Sign in
Sign in to email housing provider Sign in

Monthly cost calculator


Summary

The Elmhurst one-bedroom apartment boasts functional living with a modern design and is the perfect home for professionals and first-time buyers looking to step onto the...

Eligibility

You can apply to buy the home if all of the following apply:

  • your household income is £80,000 or less
  • you cannot afford all of the deposit and mortgage payments to buy a home that meets your needs

One of the following must also be true:

  • you're a first-time buyer
  • you used to own a home but cannot afford to buy one now
  • you're forming a new household - for example, after a relationship breakdown
  • you're an existing shared owner, and you want to move
  • you own a home and want to move but cannot afford to buy a new home for your needs

If you own a home, you must have completed the sale of the home on or before the date you complete your shared ownership purchase.

As part of your application, your finances and credit history will be assessed to ensure that you can afford and sustain the rental and mortgage payments.

Description
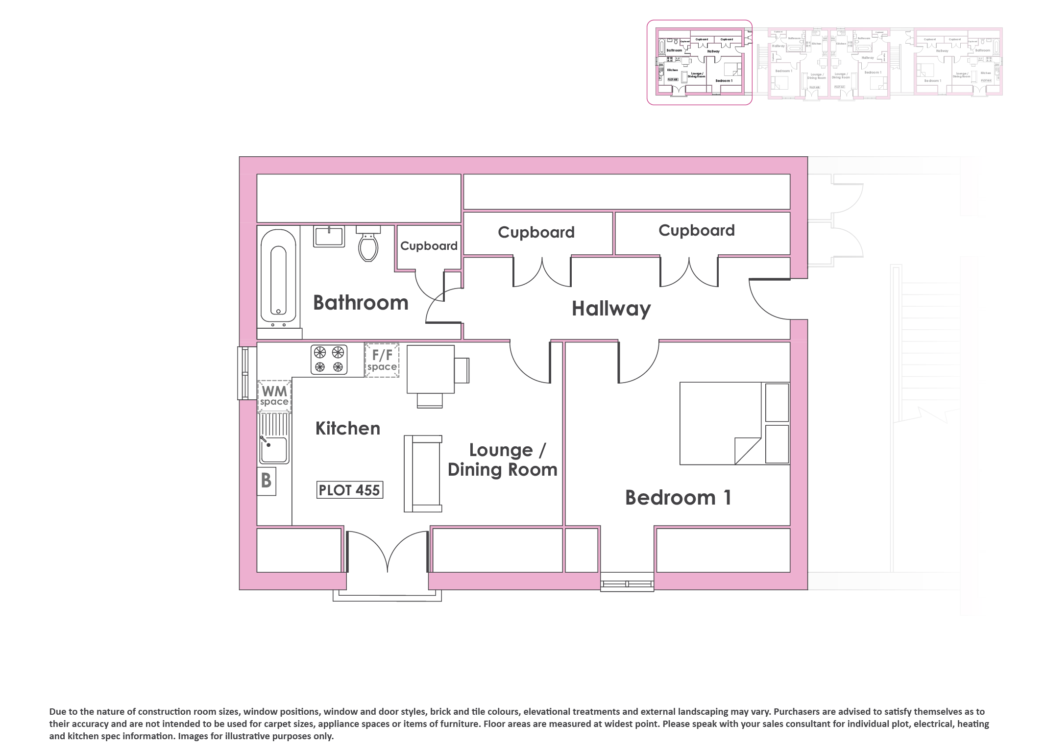
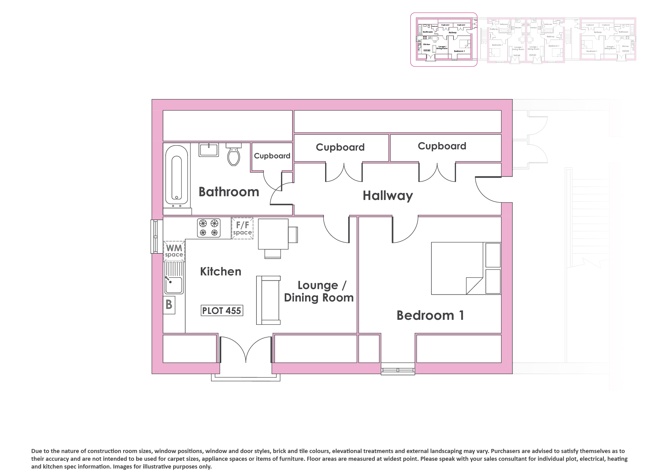
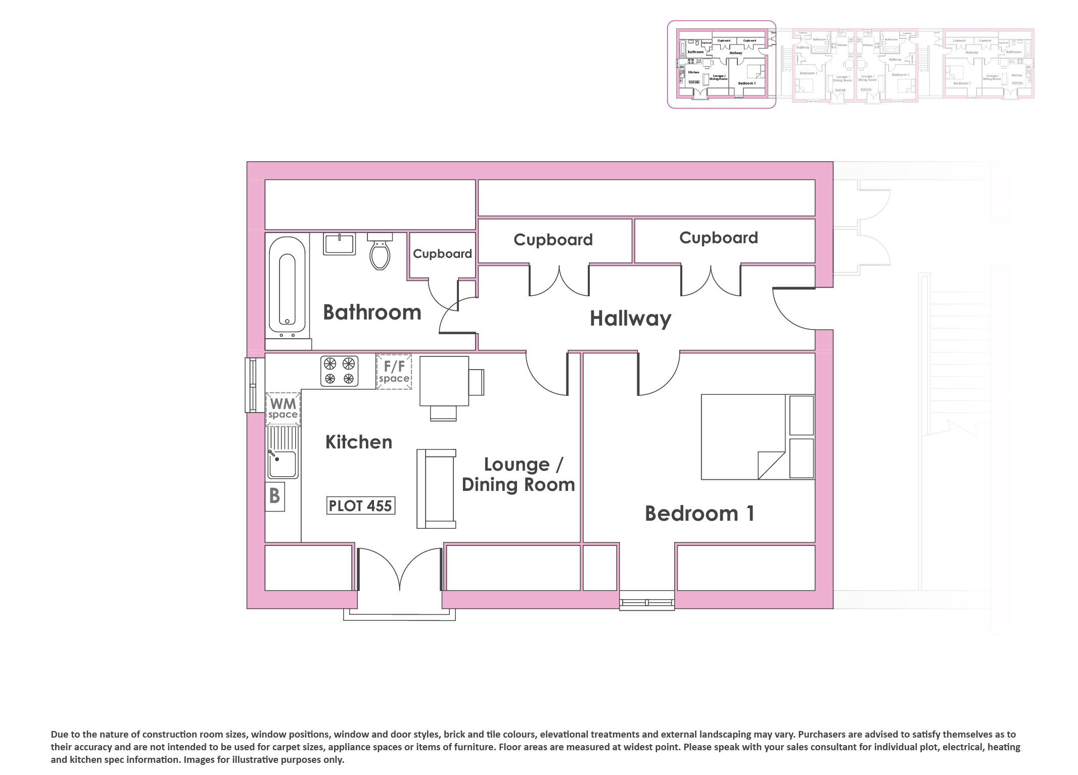
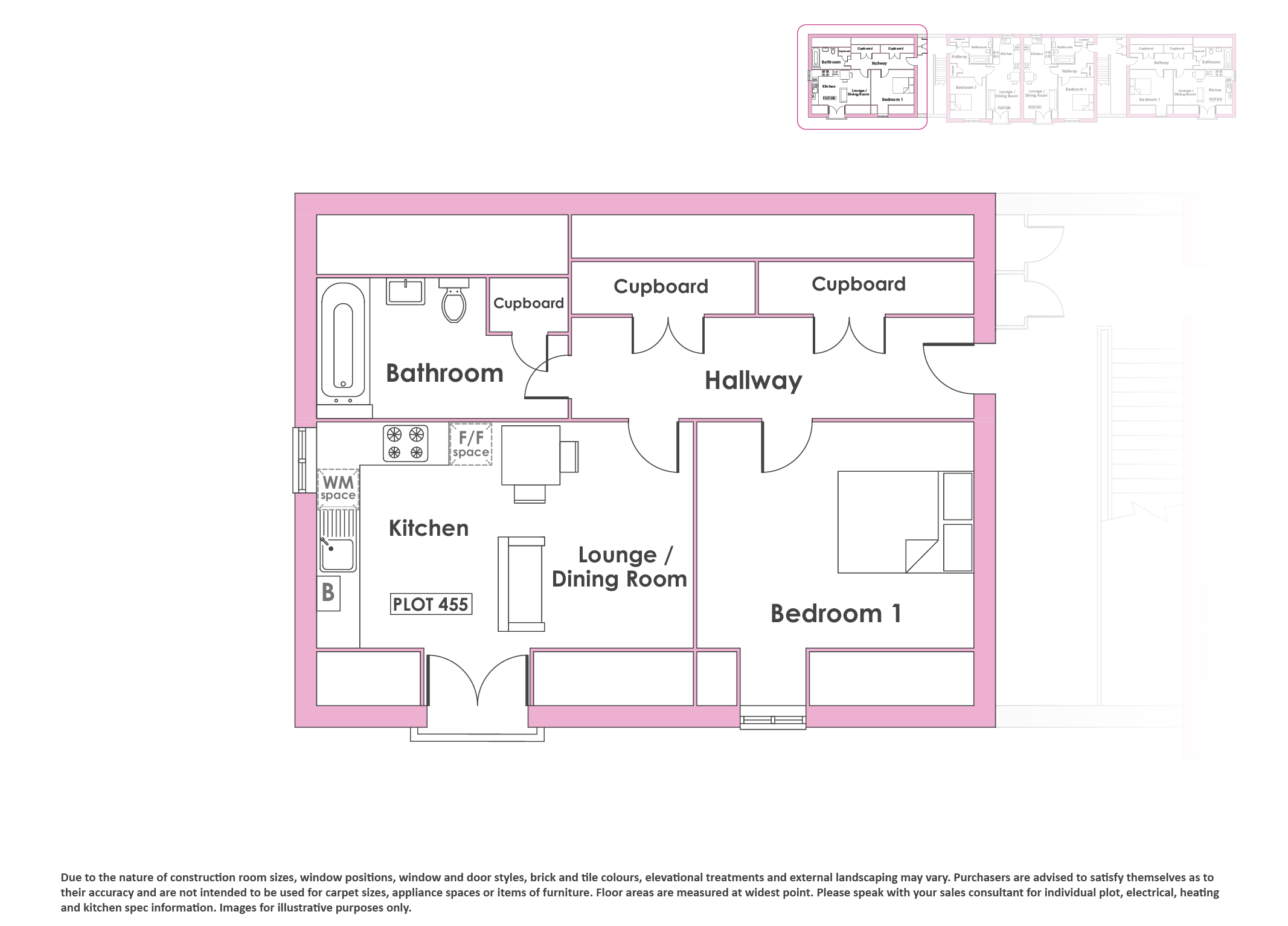
The Elmhurst one-bedroom shared Ownership apartment boasts functional living with a modern design and is the perfect home for professionals and first-time buyers looking to step onto the property ladder.

Enter The Elmhurst into its welcoming hallway, which leads you to the heart of this home, the open-plan living space. This convenient space has everything you need for comfortable living. Unwind in the lounge area after a long day and practice your culinary skills in the well equipped kitchen. The kitchen features an integrated oven, hob and extractor hood, with enough space for a dining table, making this the ideal space for entertaining guests. The lounge features access to a balcony, allowing plenty of natural light and fresh air to fill the room, and a space that can be enjoyed in warmer months.

Back through the hallway, a master bedroom presents itself and is a comfortable space for a restful night.

A modern fitted bathroom and two convenient storage cupboards located in the hallway completes this home. Outside, you will find allocated parking for one car.

If The Elmhurst is the missing piece in your homeownership journey, contact our friendly Sales team for more information.

  • Full price: £160,000
  • Minimum share of 40%
  • 40% share value £64,000*
  • 5% minimum deposit

*Share prices and purchases can range between 25%-75%, the above 40% is an average purchase percentage. Terms and conditions apply, please ask for details. Prices correct at time of publication.

What is Shared Ownership?


Shared Ownership is a way to buy a home that makes it more affordable if buying outright isn't possible. You buy a share of the home that suits your budget and pay rent on the part you don't own. Over time, if and when it feels right for you, you can buy more shares and increase how much of the home you own. It offers flexibility and choice, helping you move into a home that meets your needs, with the option to grow your ownership and own your home 100% in the future.

Disclaimer

*Computer-generated images and photography are intended for illustrative purposes only and may not represent the actual fittings and furnishings at the development. Images are of typical elevations and may vary. Please speak to an advisor for more information.

Local Area Description

Description

Property information & downloads

Key features

Material information

Key Information Document Floor plan
Local area information
My Places Include travel time from key places

You can add locations as 'My Places' and save them to your account. These are locations you wish to commute to and from, and you can specify the maximum time of the commute and by which transport method.

Disclaimer
The information displayed about this property comprises a property advertisement. Share to Buy Ltd makes no warranty as to the accuracy or completeness of the advertisement or any linked or associated information, and Share to Buy has no control over the content. This property advertisement does not constitute property particulars. The information is provided and maintained by the sponsoring housing association. Please contact the housing association or estate agent directly to obtain any information which may be available under the terms of The Energy Performance of Buildings (Certificates and Inspections) (England and Wales) Regulations 2007.
Sign in to view phone number Sign in
Sign in to email housing provider Sign in
Monthly cost calculator
£64,000 Shared Ownership New Build Full price £160,000
Estimated monthly cost £682
£

How is this calculated?

Send enquiry to the seller