Available

£134,000

Francis Fields - Frome - Somerset | 7 Hawker Street, BA11 5BX
Share 40.00% / Full price £335,000 / Deposit £6,700

House
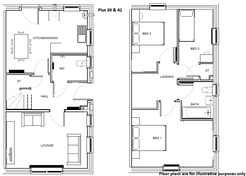
3 bedrooms
Not specified
Pets allowed

Sign in to enquire

Monthly cost calculator


Summary

We'd love to hear from you if you'd like to apply for this 3-bedroom shared ownership home!

Eligibility

You may be eligible for this property if:

  • You have a gross household income of no more than £80,000 per annum.
  • You are unable to purchase a suitable home to meet your housing needs on the open market.
  • You do not already own a home or you will have sold your current home before you purchase or rent.
  • You live or work in Somerset
Description

Interested in applying for this lovely shared ownership home on this new Frome development?
Contact the team to find out more and grab your application pack!

Discover more about Frome:

Frome is a wonderful historic town in Somerset, once named by the Times as one of the ‘best places to live in Britain’. It offers independent shops alongside your Highstreet favourites, restaurants and a vibrant performing arts scene. A market takes place in the town centre every Wednesday, Thursday and Sunday. Frome also benefits from great transport links, including direct trains to Bristol, Weymouth and Reading, and Bath is only a half an hour drive north.

Description

Property information & downloads

Material information

Key Information Document Floor plan
Local area information
My Places Include travel time from key places

You can add locations as 'My Places' and save them to your account. These are locations you wish to commute to and from, and you can specify the maximum time of the commute and by which transport method.

Disclaimer
The information displayed about this property comprises a property advertisement. Share to Buy Ltd makes no warranty as to the accuracy or completeness of the advertisement or any linked or associated information, and Share to Buy has no control over the content. This property advertisement does not constitute property particulars. The information is provided and maintained by the sponsoring housing association. Please contact the housing association or estate agent directly to obtain any information which may be available under the terms of The Energy Performance of Buildings (Certificates and Inspections) (England and Wales) Regulations 2007.
Sign in to enquire
Monthly cost calculator
£134,000 Shared Ownership New Build Full price £335,000
Estimated monthly cost £1,223
£

How is this calculated?

Send enquiry to the seller