Available

£206,250

Hawker Avenue, Longhedge, SP4 6SE
Share 75% / Full price £275,000 / Min deposit £10,313

House
2 bedrooms
1 bathroom

Available on Shared Ownership resale | Book your viewing
Sign in to enquire

Monthly cost calculator


Summary

Two bedroom mid-terraced house in Longhedge, Salsibury. Benefit from a back garden and parking!

Eligibility

You may be eligible for this property if:

  • You have a gross household income of no more than £80,000 per annum.
  • You are unable to purchase a suitable home to meet your housing needs on the open market.
  • You do not already own a home or you will have sold your current home before you purchase or rent.
  • You live or work in Wiltshire - Wiltshire
Description

This two bedroom, mid-terraced house is located in Longhedge, Salisbury. Garden and two parking spaces provided! Available on Shared Ownership resale, you could buy with just a 5% deposit.

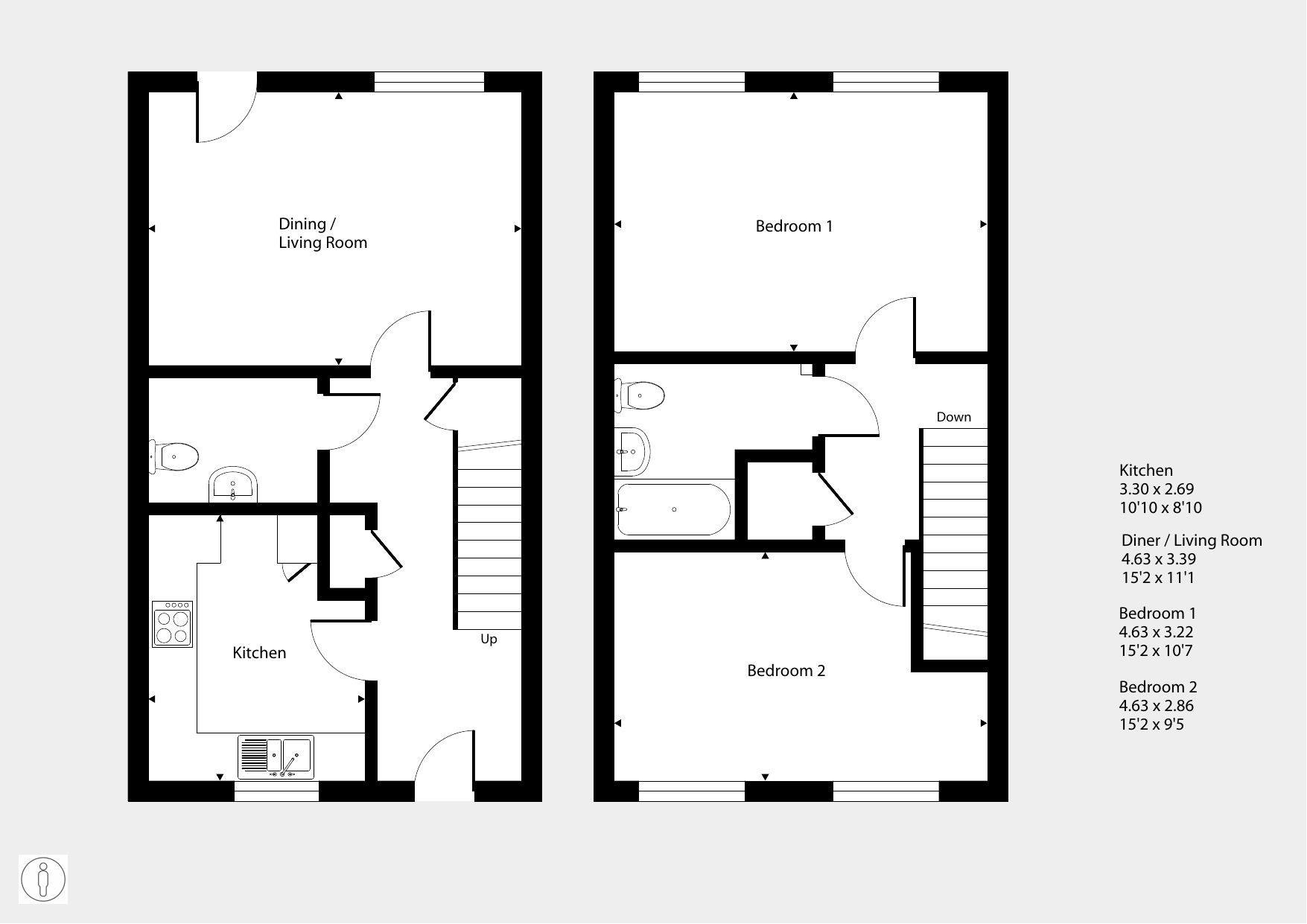
Featuring a spacious living area, with a door to your back garden. The kitchen is fitted with an integrated oven, hob and hood. On this floor, you'll also find a WC and storage cupboard.

Upstairs, there are two comfortable double bedrooms. The bathroom has a modern, white suite.

You'll also have two parking spaces.

Please note a local connection to Wiltshire is required. This could mean living, working or having family living in the area.

Description

Property information & downloads

Key features

Material information

Key Information Document Floor plan Energy Certificate
Local area information
My Places Include travel time from key places

You can add locations as 'My Places' and save them to your account. These are locations you wish to commute to and from, and you can specify the maximum time of the commute and by which transport method.

Disclaimer
The information displayed about this property comprises a property advertisement. Share to Buy Ltd makes no warranty as to the accuracy or completeness of the advertisement or any linked or associated information, and Share to Buy has no control over the content. This property advertisement does not constitute property particulars. The information is provided and maintained by the sponsoring housing association. Please contact the housing association or estate agent directly to obtain any information which may be available under the terms of The Energy Performance of Buildings (Certificates and Inspections) (England and Wales) Regulations 2007.
Sign in to enquire
Monthly cost calculator
£206,250 Shared Ownership Resale Full price £275,000
Estimated monthly cost £1,360
£

How is this calculated?

Send enquiry to the seller