Available

£47,500

Mallory Drive, PE7 3AF
Share 25% / Full price £190,000 / Min deposit £2,375

House
2 bedrooms
1 bathroom

Sign in to enquire

Monthly cost calculator


Summary

Available Now! *2 bedroom mid terrace house *Yaxley, Peterborough *Shared ownership scheme

Eligibility

You may be eligible for this property if:

  • You have a gross household income of no more than £80,000 per annum.
  • You are unable to purchase a suitable home to meet your housing needs on the open market.
  • You do not already own a home or you will have sold your current home before you purchase or rent.
Description

This 2-bedroom, mid terrace house is situated in Yaxley, Peterborough, and is available to purchase through the shared ownership scheme.

Full market value: £190,000

Monthly service charge: £14.67

Monthly rent: £326.56 based on a 25% share

About the property

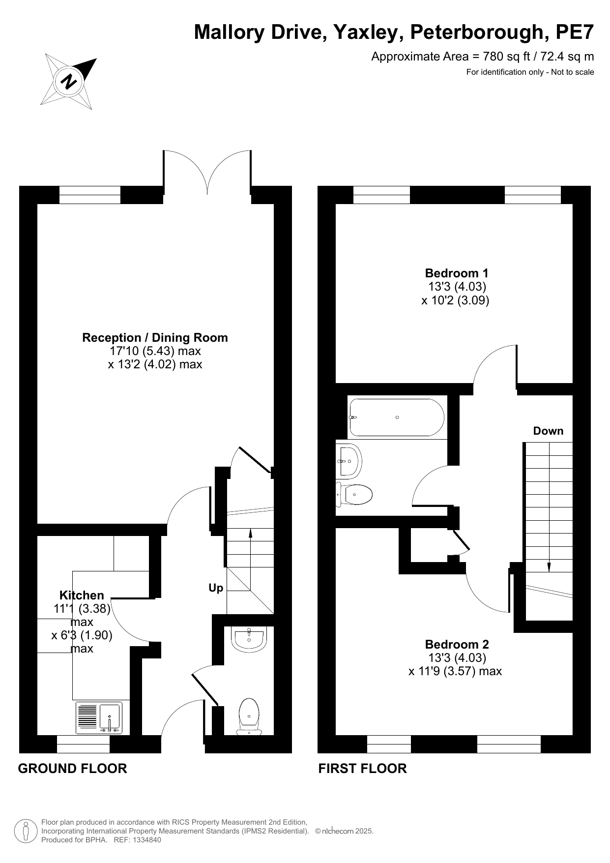
This property is comprised of:

An entrance hall

Entrance hall with WC and stairs to first floor

Kitchen

Living/ dining room

Bedroom 1

Bedroom 2

Bathroom

All main services are connected and there is gas-fired radiator central hearing.

About the area

Peterborough is a cathedral city in Cambridgeshire, England, with a population of 183,631 in 2011. Historically part of Northamptonshire, it is 75 miles north of London, on the River Nene which flows into the North Sea 30 miles to the north-east. Rich in local amenities, there are open green spaces and fitness facilities, restaurants and take-outs, a shopping centre, arts and entertainment locations including a theatre and a museum, and more.

The railway station is an important stop on the East Coast Main Line between London and Edinburgh. The A1/A1(M) primary route (part of European route E15) broadly follows the path of the historic Great North Road from St Paul's Cathedral in the heart of London, through Peterborough (Junction 17), continuing north a further 335 miles (539 km) to central Edinburgh.

Shared ownership, how does it work?

If buying a home seems out of reach, Shared Ownership* could be the answer and offers a great alternative to renting. Initial shares of between 25% and 75%** of our properties are available, you will pay a subsidised rent on the remaining share.

*Properties are offered as leasehold.

**Some properties are restricted to the level of share you can purchase. Please note: Your home may be repossessed if you do not keep up repayments on your mortgage. Rent/Service Charge are an estimate.

Disclaimer

The information provided by Domovo, the sales and marketing brand for bpha, is prepared as a general guide only and should not be relied upon as a basis to enter into a legal contract or to commit expenditure. All measurements are approximate. Floorplans are for illustration purposes only. Photographs/CGIs provided are for guidance only and may not reflect items included in the property sale. Any interested party is advised to check the measurements and to consult their own surveyor, solicitor and/or other professionals before committing themselves to any expenditure or other legal commitments.

Please note: Your home may be repossessed if you do not keep up repayments on your mortgage.

Description

Property information & downloads

Key features

Material information

Key Information Document Floor plan Energy Certificate
Local area information
My Places Include travel time from key places

You can add locations as 'My Places' and save them to your account. These are locations you wish to commute to and from, and you can specify the maximum time of the commute and by which transport method.

Domovo Asset Sales
Disclaimer
The information displayed about this property comprises a property advertisement. Share to Buy Ltd makes no warranty as to the accuracy or completeness of the advertisement or any linked or associated information, and Share to Buy has no control over the content. This property advertisement does not constitute property particulars. The information is provided and maintained by the sponsoring housing association. Please contact the housing association or estate agent directly to obtain any information which may be available under the terms of The Energy Performance of Buildings (Certificates and Inspections) (England and Wales) Regulations 2007.
Sign in to enquire
Monthly cost calculator
£47,500 Shared Ownership Resale Full price £190,000
Estimated monthly cost £600
£

How is this calculated?

Send enquiry to the seller