Under Offer

£86,363

88 Wildeve Avenue, Colchester, , CO4 6AJ
Share 35% / Full price £246,750 / Min deposit £4,318

House
2 bedrooms
1 bathroom

Red Loft
0207 5393745
Sign in to enquire

Monthly cost calculator


Summary

Stylish Two-Bedroom Coach House in the Sought-After Chesterwell Development, Colchester 

Description

Stylish Two-Bedroom Coach House in the Sought-After Chesterwell Development, Colchester


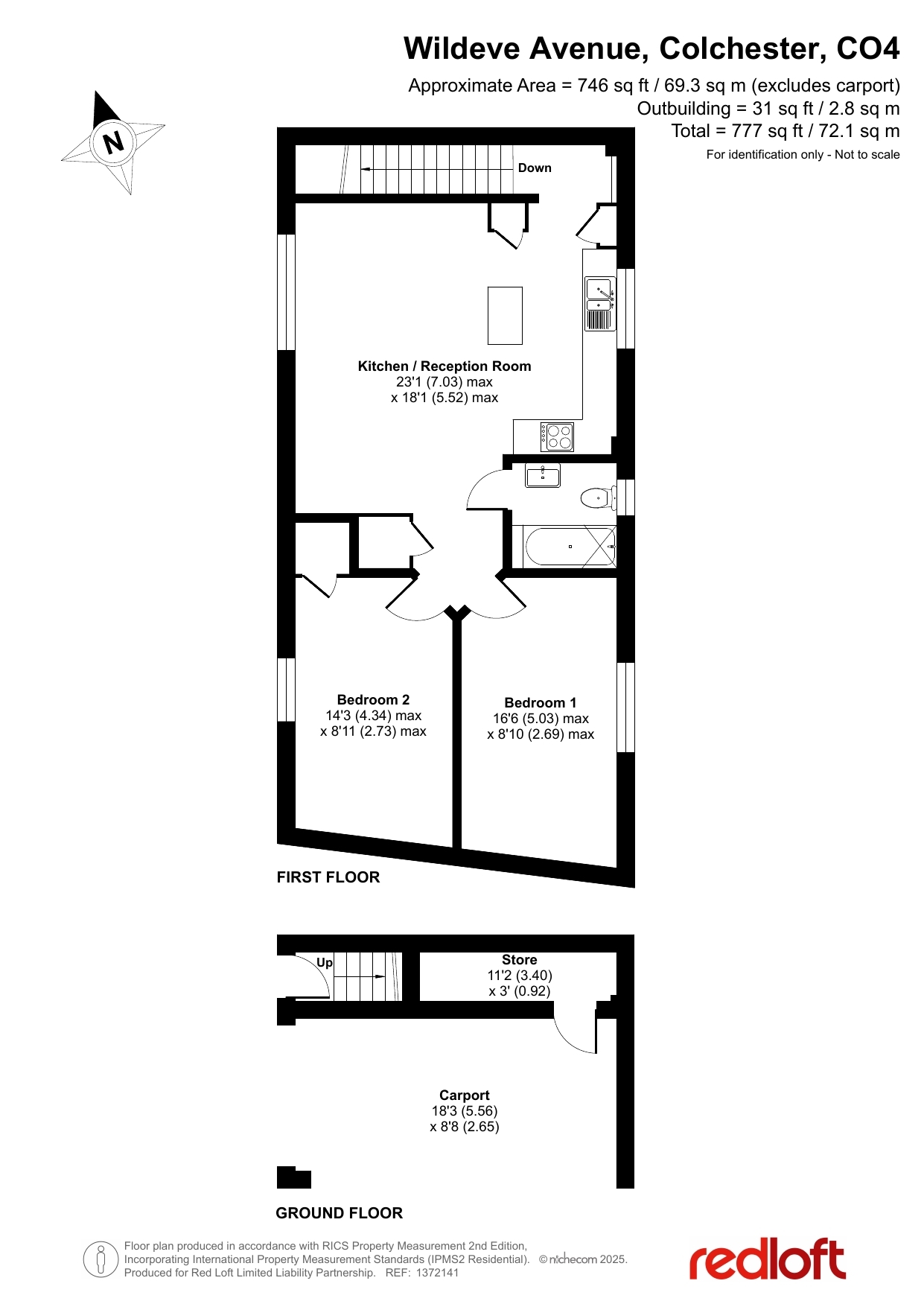
Discover the perfect blend of modern comfort and countryside charm with this beautifully presented two-bedroom coach house, located in the desirable Chesterwell development in Colchester. Available through Shared Ownership, this home has been finished to an exceptional standard throughout, offering stylish open-plan living and high-quality fixtures.

The contemporary kitchen is fully fitted with integrated appliances including a washing machine/tumble dryer, full-size dishwasher, tall fridge freezer, electric oven and gas hob - ideal for those who enjoy cooking and entertaining. Both bedrooms are generously sized doubles, with built-in wardrobes to the main bedroom, while the sleek bathroom features a luxurious finish with an illuminated mirror offering Bluetooth speakers, a demisting function, and ambient surround lighting.

Additional highlights include a large loft with lighting and power sockets, a private storage shed, full fibre broadband, and efficient gas central heating with a modern combi boiler and wall-mounted controls. The property also benefits from two private parking spaces (one beneath the property in a carport) and access to communal green areas both to the front and rear.

Key Features

  • Modern two-bedroom coach house within the popular Chesterwell development
  • Available through Shared Ownership
  • Stylish open-plan living, dining and kitchen area
  • Fully fitted kitchen with integrated appliances
  • Luxurious bathroom with Bluetooth mirror and high-spec finish
  • Large loft with lighting and power sockets for extra storage
  • Two allocated parking spaces (one under carport) plus visitor parking
  • Energy-efficient home with EPC rating B and full fibre broadband
  • Walking distance to Colchester North Station and close to A12

Key Information:

  • Tenure: Shared Ownership
  • Available Shares from: 35%
  • Full Market Value: £246,750
  • Share Value (initial purchase) from: £86,362.50
  • Rent (on unsold equity): £363.74 per month
  • Service Charge: £27.72 per month
  • Lease Length: 94 years remaining
  • Council Tax Band: B
  • EPC Rating: A

Please note that higher shares may be available to purchase. The final share amount will be discussed and agreed upon during your financial assessment.

Location

Situated within walking distance of Colchester North Station and just a short drive to the A12, this home offers fantastic transport connections to London and beyond. Chesterwell is known for its leafy surroundings, community feel, and convenient local amenities including a Co-op, organic coffee shop, private gym, GP service, beauty salon, chemist and reformer fitness studio.

Description

Property information & downloads

Key features

Material information

Floor plan Energy Certificate
Local area information
My Places Include travel time from key places

You can add locations as 'My Places' and save them to your account. These are locations you wish to commute to and from, and you can specify the maximum time of the commute and by which transport method.

Red Loft
Disclaimer
The information displayed about this property comprises a property advertisement. Share to Buy Ltd makes no warranty as to the accuracy or completeness of the advertisement or any linked or associated information, and Share to Buy has no control over the content. This property advertisement does not constitute property particulars. The information is provided and maintained by the sponsoring housing association. Please contact the housing association or estate agent directly to obtain any information which may be available under the terms of The Energy Performance of Buildings (Certificates and Inspections) (England and Wales) Regulations 2007.
Sign in to enquire
Monthly cost calculator
£86,363 Shared Ownership Resale Full price £246,750
Estimated monthly cost £861
£

How is this calculated?

Send enquiry to the seller