Available

£760pcm

Orchard View Rent to Buy | Plot 330, Caswell Drive, CW9 7BL
Share 0% / Full price £760 / Min deposit £76

House
2 bedrooms
2 bathrooms

New year, new home!
Sign in to enquire

Monthly cost calculator


Summary

The Poppy at Orchard View is a stylish two-bedroom property, perfect for first-time buyers to call home.

Eligibility

All applicants applying for our Rent to Buy Properties are required to pass our affordability criteria. The below is a guidance of the minimum household income which is required to proceed with an application. Unfortunately, Housing Benefit is not taken into account as income. To reserve your property, you will need to pay a reservation fee of £150. This will be used as part payment of your first month’s rent, once completed, referencing process will proceed.

Minimum household income required:

Monthly rent of £760 requires a minimum household income of £28,500 p/a

At the time of letting, prospective Rent to Buy tenants must be in working households and intending to buy their own home in the future.
Prospective Rent to Buy tenants must be first time buyers or returning to the market following a relationship breakdown.

You will be required to complete the Rent to Buy pre-qualification form on our website when you apply.

Description

There is a minimum household income requirement of £28,500 p/a to proceed with an application for this plot. For full eligibility criteria available on our website.

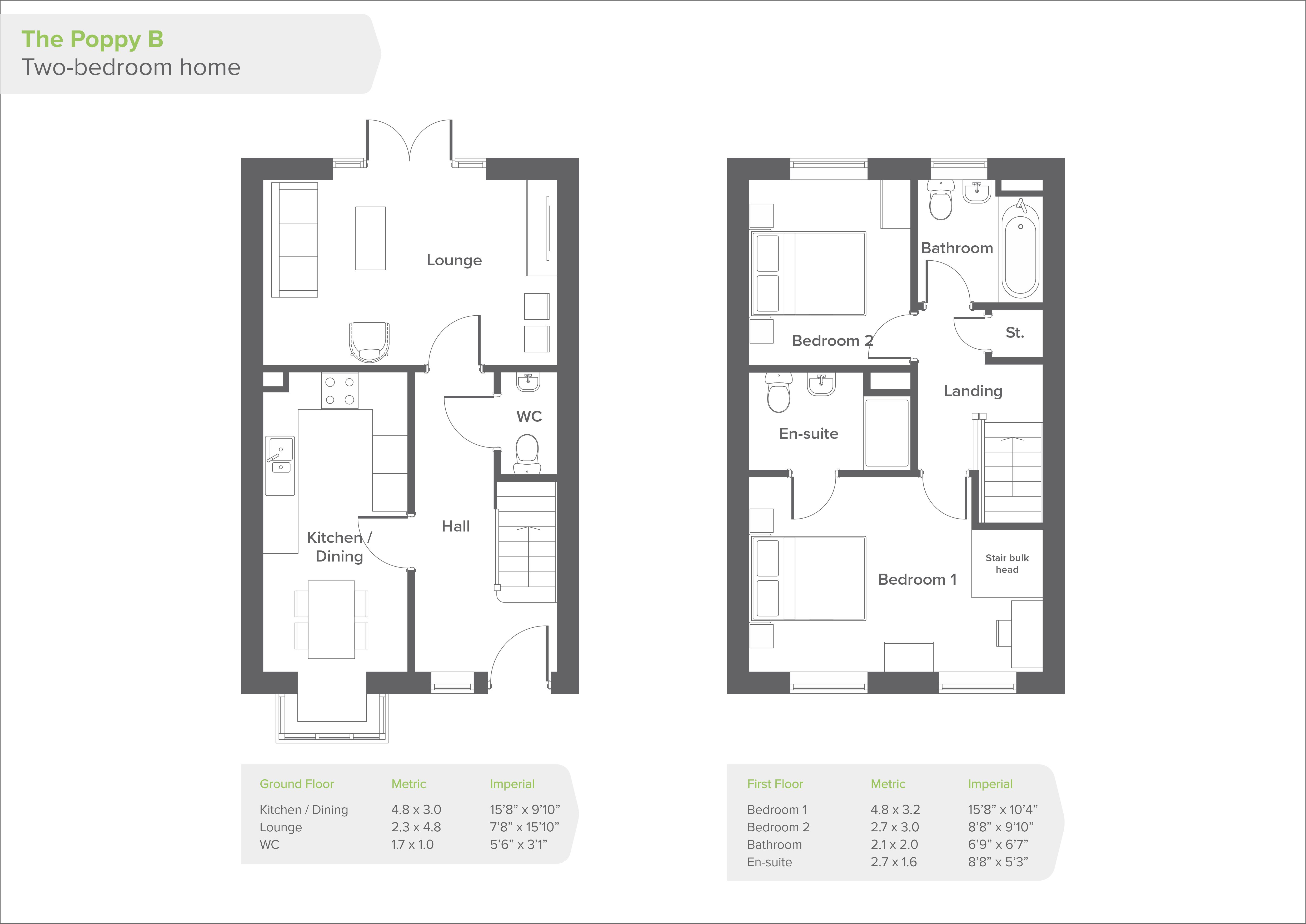
The Poppy at Orchard View is a stylish two-bedroom property, perfect for first-time buyers to call home. Featuring parking, separate lounge, and a kitchen/diner filled with integrated appliances and a downstairs W.C.

The ground floor of this stylish new home features a spacious kitchen/diner at the front of the property. The kitchen/diner is filled with high-quality integrated appliances, including a fridge freezer, dishwasher, and an electric oven and hob. Head towards the rear of the house to find a separate lounge with access to the turfed rear garden through a set of patio doors, perfect for those summer barbecues! There is also handy downstairs W.C.

Upstairs consists of a good-sized master bedroom with its own en-suite, plus a second twin bedroom. The contemporary 3-piece family bathroom contains an over-bath shower, plus designer tiling from Porcelanosa.

Detailed Specification

General:

Double glazing
Off street parking
Energy efficient appliances
Vinyl flooring to kitchen, bathroom, WC’s and en-suite
Patio doors to garden
EV charging points to all houses
Solar panels to all houses
Turfed front and rear gardens
Kitchen:

Symphony cabinet and worktops
Electric oven and ceramic hob*
Cooker hood
Integrated fridge freezer
Integrated dishwasher
A rated combi boiler
LED downlighters.
Bathroom:

Contemporary three-piece bathroom suite
Heated towel rail
Porcelanosa tiles.
Living:

Telephone and broadband internet sockets.
TV sockets.

*Induction hob applicable to outright sale and shared ownership properties. Rent to Buy properties benefit from a ceramic hob.

Communal:

All leaseholders are required to pay a fair and reasonable proportion of the repairs and maintenance of landscaped areas and communal facilities as detailed in the lease. Please note, this will include ad hoc payments for cleaning of lighting columns.

Landscaping Area:

Refer to service charge breakdown.

Communal Facilities:

Shared private drives, shared footpaths, unadopted lighting, lighting columns boundary treatments/railings or any additional facilities which the Landlord sees fit.

Description

Property information & downloads

Key features

Material information

Key Information Document Floor plan Brochure
Local area information
My Places Include travel time from key places

You can add locations as 'My Places' and save them to your account. These are locations you wish to commute to and from, and you can specify the maximum time of the commute and by which transport method.

Disclaimer
The information displayed about this property comprises a property advertisement. Share to Buy Ltd makes no warranty as to the accuracy or completeness of the advertisement or any linked or associated information, and Share to Buy has no control over the content. This property advertisement does not constitute property particulars. The information is provided and maintained by the sponsoring housing association. Please contact the housing association or estate agent directly to obtain any information which may be available under the terms of The Energy Performance of Buildings (Certificates and Inspections) (England and Wales) Regulations 2007.

Send enquiry to the seller