Under Offer

£96,000

Barratt Homes at Ladden Garden Village | Buxton Road, Yate, BS37 7NQ
Share 40% / Full price £240,000 / Min deposit £4,800

Apartment
2 bedrooms
1 bathroom

Sign in or create an account to continue Continue
Sign in or create an account to continue Continue

Monthly cost calculator


Summary

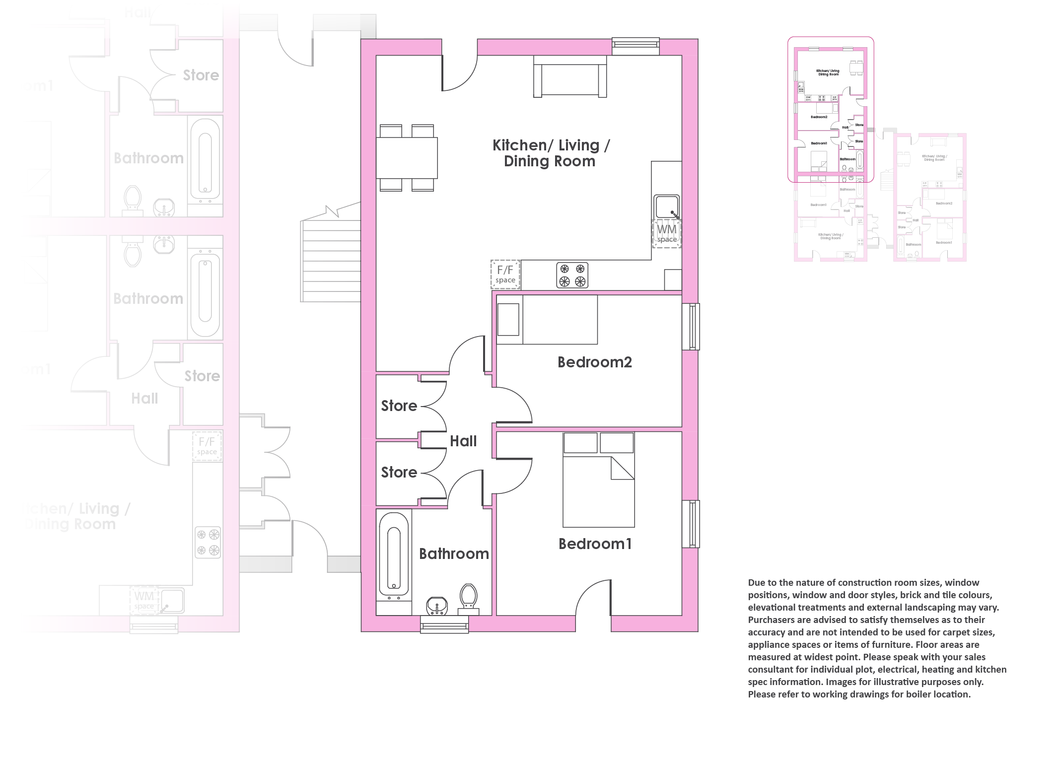
Welcome to The Laurel, a two-bedroom apartment offering the perfect blend of modern living and practical comfort. Ideal for professionals, first-time buyers, and couples...

Eligibility

You can apply to buy the home if all of the following apply:

  • your household income is £90,000 or less
  • you cannot afford all of the deposit and mortgage payments to buy a home that meets your needs

One of the following must also be true:

  • you're a first-time buyer
  • you used to own a home but cannot afford to buy one now
  • you're forming a new household - for example, after a relationship breakdown
  • you're an existing shared owner, and you want to move
  • you own a home and want to move but cannot afford to buy a new home for your needs

If you own a home, you must have completed the sale of the home on or before the date you complete your shared ownership purchase.

As part of your application, your finances and credit history will be assessed to ensure that you can afford and sustain the rental and mortgage payments.

Description
Welcome to The Laurel, a two-bedroom apartment offering the perfect blend of modern living and practical comfort. Ideal for professionals, first-time buyers, and couples ready to step onto the property ladder.


Step right into your open-plan living space through your own private entrance. A space that's perfect for unwinding after a busy day or entertaining friends and family. The kitchen comes fully equipped with an integrated oven, hob, and extractor, so you can start creating home-cooked meals from day one.

The master bedroom can be found through the hallway and provides a peaceful retreat for restful nights, complete with its own doorway leading outside. The second bedroom offers flexibility, whether you need a home office, guest bedroom, dressing room, or creative space, it adapts to your lifestyle.

A stylish bathroom and convenient storage complete the apartment.

Outside, allocated parking provides added convenience, giving you complete peace of mind.

This thoughtfully planned home delivers everything you need to start your next chapter.

If you're ready to take the exciting step into Shared Ownership, our friendly Sales team are here to help. Get in touch today to discover how The Laurel could become your new home.

  • Full house price: £###
  • Suggested minimum share: 40%
  • Minimum share price: £##,000*
  • Minimum 5% deposit

*Due to the terms of the lease, these homes are available for an initial share purchase of 40% only. You are then able to purchase more shares at a later date. Please ask a Sales Consultant for more information

Disclaimer:

*Computer-generated images and photography are intended for illustrative purposes only and may not represent the actual fittings and furnishings at the development. Images are of typical elevations and may vary. Please speak to an advisor for more information.

Description

Property information & downloads

Key features

Material information

Floor plan
Local area information
Stations
Showing nearest stations
Disclaimer
The information displayed about this property comprises a property advertisement. Share to Buy Ltd makes no warranty as to the accuracy or completeness of the advertisement or any linked or associated information, and Share to Buy has no control over the content. This property advertisement does not constitute property particulars. The information is provided and maintained by the sponsoring housing association. Please contact the housing association or estate agent directly to obtain any information which may be available under the terms of The Energy Performance of Buildings (Certificates and Inspections) (England and Wales) Regulations 2007.
Sign in or create an account to continue Continue
Sign in or create an account to continue Continue
Monthly cost calculator
£96,000 Shared Ownership New Build Full price £240,000
Estimated monthly cost £744
£

How is this calculated?

Request details from the housing provider