Available

£84,000

Six Hills House, Kinds Road, SG1 1AW
Share 35% / Full price £240,000 / Min deposit £4,200

Apartment
2 bedrooms
Not specified

SO Resi
02080229696
Sign in to enquire

Monthly cost calculator


Summary

A 2 bed shared ownership property available in Stevenage, Hertfordshire

Description

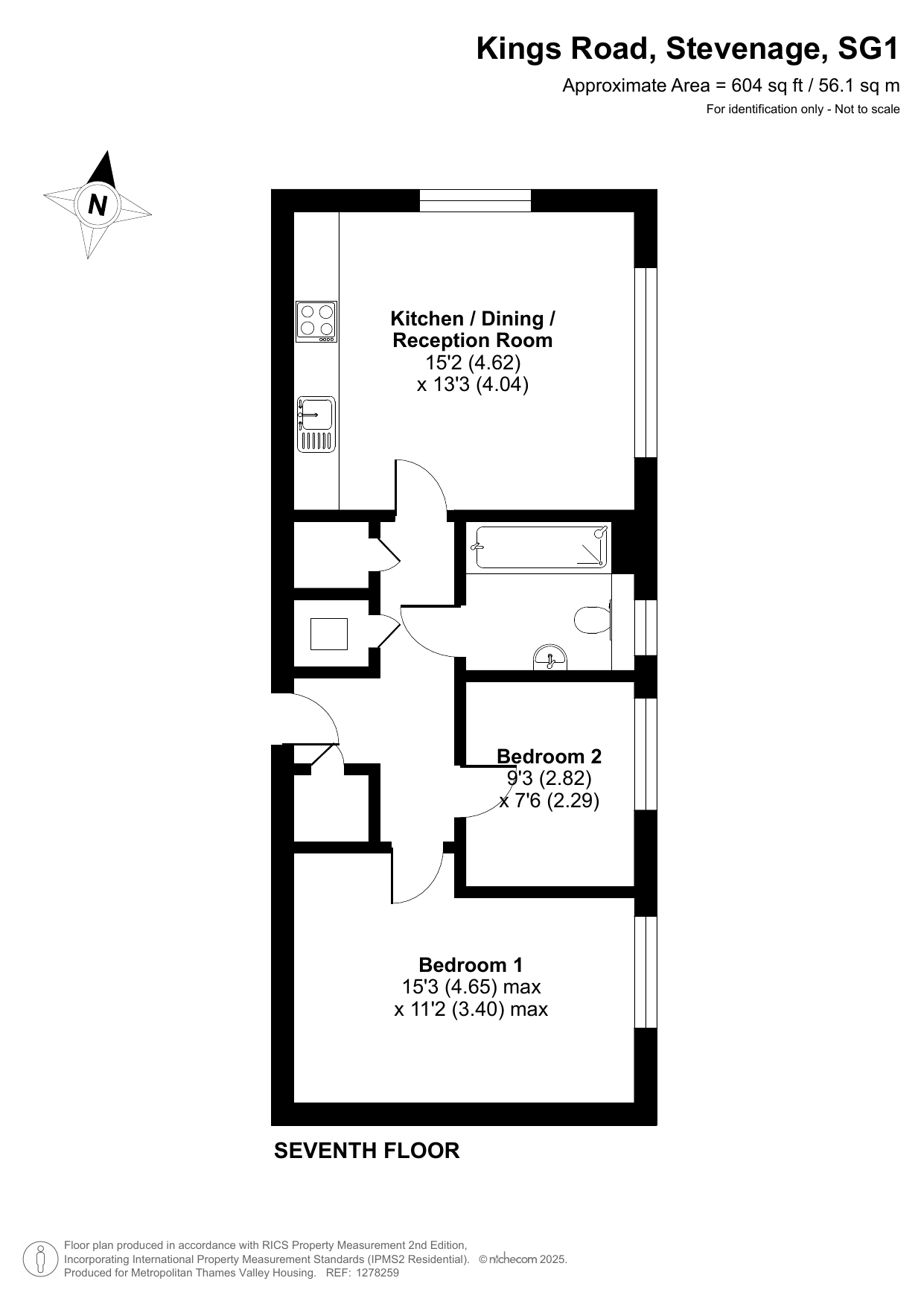
Modern seventh floor apartment in Stevenage now available through Shared Ownership.

The property comprises two spacious bedrooms, one bathroom with a shower over the bath, an open-plan kitchen/living room, and a fully equipped kitchen. The flat offers amazing views and private allocated parking within a secure gated car park adjacent to the building.

Available for £84,000 for 35% share based on the marketing figure of £240,000.

Monthly rent - £525.83
Monthly Service Charge - £224.89
Total Monthly Charge - £750.72 plus mortgage required for 35% share.

An annual rent increase takes place every April

Location

The location is ideal for commuters. The property sits only 10 minutes away from the train station, close to the A1 motorway and only a 10-minute walk to Stevenage bus station and has a 20-minute train connection to London King's Cross.

The town centre is also a 10-minute walk away from the apartment, and there are many local amenities nearby, such as a food superstore, gym, cinema, and restaurants.

EPC rating

Energy rating band - D
Environmental impact band - D

Lease information

Years remaining on lease: 180

In certain cases, the remaining length of the lease on a property can impact the availability of mortgages to prospective purchasers and the future saleability of the home. We recommend that you speak to your solicitor and your financial advisor to ensure that the lease length is suitable for your needs.

Description

Property information & downloads

Key features

Material information

Floor plan
Local area information
My Places Include travel time from key places

You can add locations as 'My Places' and save them to your account. These are locations you wish to commute to and from, and you can specify the maximum time of the commute and by which transport method.

Disclaimer
The information displayed about this property comprises a property advertisement. Share to Buy Ltd makes no warranty as to the accuracy or completeness of the advertisement or any linked or associated information, and Share to Buy has no control over the content. This property advertisement does not constitute property particulars. The information is provided and maintained by the sponsoring housing association. Please contact the housing association or estate agent directly to obtain any information which may be available under the terms of The Energy Performance of Buildings (Certificates and Inspections) (England and Wales) Regulations 2007.
Sign in to enquire
Monthly cost calculator
£84,000 Shared Ownership Resale Full price £240,000
Estimated monthly cost £1,207
£

How is this calculated?

Send enquiry to the seller