Under Offer

£147,000

Fullbrook Avenue, Reading, RG7 1FE
Share 35% / Full price £420,000 / Min deposit £7,350

House
3 bedrooms
Not specified

SO Resi
02080229696
Sign in to register your interest

Monthly cost calculator


Description

This bright, well-decorated three-bedroom terraced house is now available in Reading through Shared Ownership.

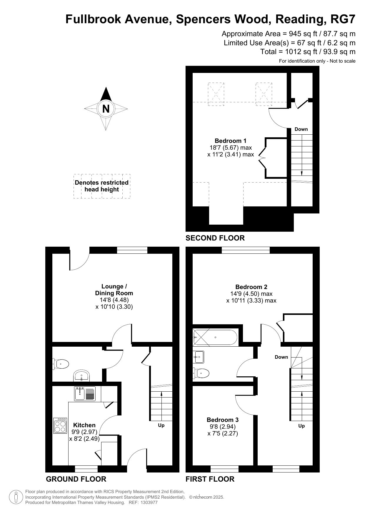
The ground floor comprises an entrance hall, fitted storage cupboards, a toilet, a spacious living room, and a separate modern kitchen. There are three bedrooms and a bathroom on the first and second floors.

Outside, there is a private garden and two allocated spaces. Perfect for families.

Available for £147,000 for 35% share based on the marketing figure of £420,000.

Monthly rent - £491.86
Monthly Service Charge - £82.18
Total Monthly Charge - £574.04 plus mortgage required for 35% share.

An annual rent increase takes place every April

Location

This property is situated in a well-connected area with a range of local amenities. Nearby, you’ll find supermarkets for daily shopping, gyms for fitness enthusiasts, hospitals for healthcare needs, and schools for families with children within 2 miles.

Transport options are convenient, with access to railway stations and bus routes that provide efficient travel.

For those commuting into central London, Reading railway station offer direct connections, making travel straightforward and accessible. The area’s infrastructure ensures residents have easy access to essential services and transport links, making it a practical and desirable location.

EPC rating

Energy rating band - B

Environmental impact band - B

Lease information

Years remaining on lease: 117

In certain cases, the remaining length of the lease on a property can impact the availability of mortgages to prospective purchasers and the future saleability of the home. We recommend that you speak to your solicitor and your financial advisor to ensure that the lease length is suitable for your needs.

Description

Property information & downloads

Key features

Material information

Key Information Document Floor plan
Local area information
My Places Include travel time from key places

You can add locations as 'My Places' and save them to your account. These are locations you wish to commute to and from, and you can specify the maximum time of the commute and by which transport method.

Disclaimer
The information displayed about this property comprises a property advertisement. Share to Buy Ltd makes no warranty as to the accuracy or completeness of the advertisement or any linked or associated information, and Share to Buy has no control over the content. This property advertisement does not constitute property particulars. The information is provided and maintained by the sponsoring housing association. Please contact the housing association or estate agent directly to obtain any information which may be available under the terms of The Energy Performance of Buildings (Certificates and Inspections) (England and Wales) Regulations 2007.
Sign in to register your interest
Monthly cost calculator
£147,000 Shared Ownership Resale Full price £420,000
Estimated monthly cost £1,373
£

How is this calculated?

Contact housing provider