Available

£154,000

Orbit Homes at Porters Grove | Darwell Close, St Leonards-on-Sea, TN38 9TN
Share 40% / Full price £385,000 / Min deposit £7,700

House
3 bedrooms
1 bathroom

Sign in to register your interest

Monthly cost calculator


Description

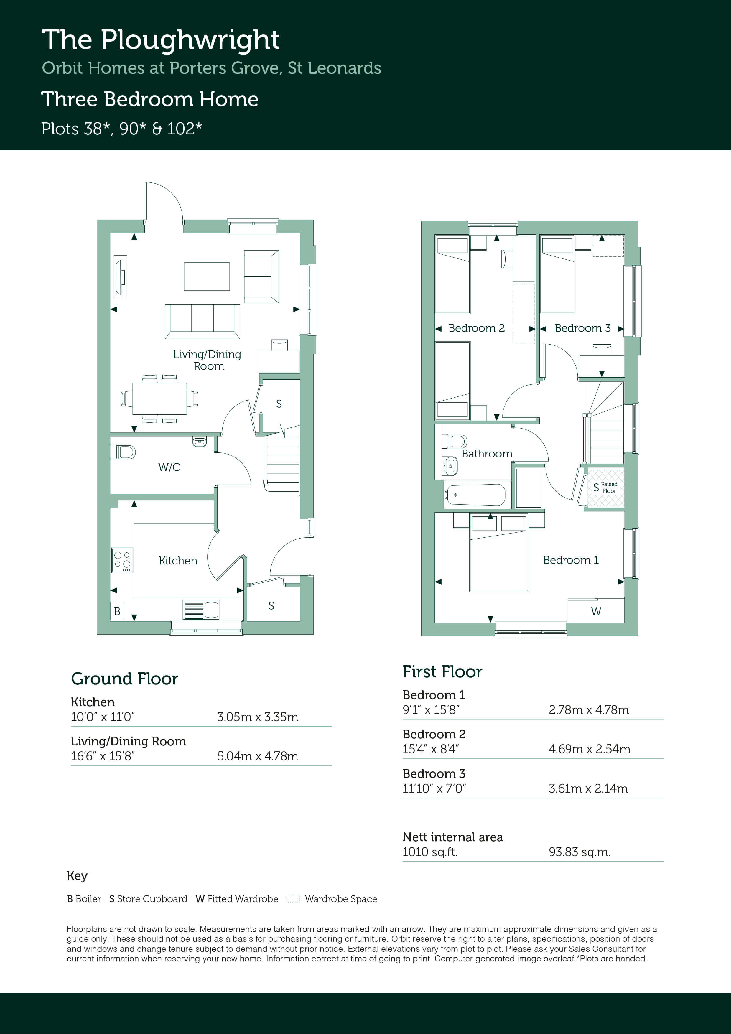
The Ploughwright is a thoughtfully designed three-bedroom, located on the corner of 2 cul-de-sacs, next to open-green space/play areas and sold with 2 allocated parking spaces.

A large storage cupboard is located off the entrance hall and next to the contemporary kitchen, complete with integrated appliances including an oven, induction hob, extractor hood, fridge/freezer and dishwasher. Space is also included for future washing machine installation. Towards the rear, the spacious living/dining room stretches the full width of the home, creating a bright and versatile space for relaxing or entertaining, with direct access to the garden. A large guest cloakroom and additional storage completes this floor.

Upstairs, three well-proportioned bedrooms offer flexibility for family life. The main bedroom benefits from a fitted wardrobe, while bedroom two provides generous space, and bedroom three works perfectly as a child’s room, guest bedroom, or home office. A stylish family bathroom completes this level, designed with both comfort and practicality in mind.

Anticipated build completion June/July 2026.

Please note that priority will be given to applicants who can demonstrate residency within Hastings Borough or alternatively have a work or family connection to the borough.

---
Tenure: Leasehold
Length of lease: 990 years
Estimated annual service charge: £225.00
Service charge review period: April (annually)
Estimated council tax band: TBC - Council Tax Band will be confirmed by the local authority on completion of the property
---

Please note that whilst every effort is made to publish interior images as similar to the home as possible, these images are not specific to the development and are selected from a library of show homes across our Orbit Homes developments. This means that the images shown do not represent the specification included within this specific plot and variances will apply. These images are used for illustrative purposes only, and selected to give the closest representation available of the layout. For site specific layout and specification, please refer to technical drawings.

Description

Property information & downloads

Key features

Material information

Floor plan
Local area information
My Places Include travel time from key places

You can add locations as 'My Places' and save them to your account. These are locations you wish to commute to and from, and you can specify the maximum time of the commute and by which transport method.

Disclaimer
The information displayed about this property comprises a property advertisement. Share to Buy Ltd makes no warranty as to the accuracy or completeness of the advertisement or any linked or associated information, and Share to Buy has no control over the content. This property advertisement does not constitute property particulars. The information is provided and maintained by the sponsoring housing association. Please contact the housing association or estate agent directly to obtain any information which may be available under the terms of The Energy Performance of Buildings (Certificates and Inspections) (England and Wales) Regulations 2007.
Sign in to register your interest
Monthly cost calculator
£154,000 Shared Ownership New Build Full price £385,000
Estimated monthly cost £1,385
£

How is this calculated?

Contact housing provider