Available

£120,000

Orbit Homes at Swingate Park | New Road, Hellingly, BN27 4EW
Share 40% / Full price £300,000 / Min deposit £6,000

House
2 bedrooms
2 bathrooms

En suite and private balcony
Sign in to email housing provider Sign in

Monthly cost calculator


Summary

Ideal for first-time buyers, this 2-bedroom coach house boasts a private balcony, en suite shower room and 2 double bedrooms

Description

£1,500 towards legal fees*!

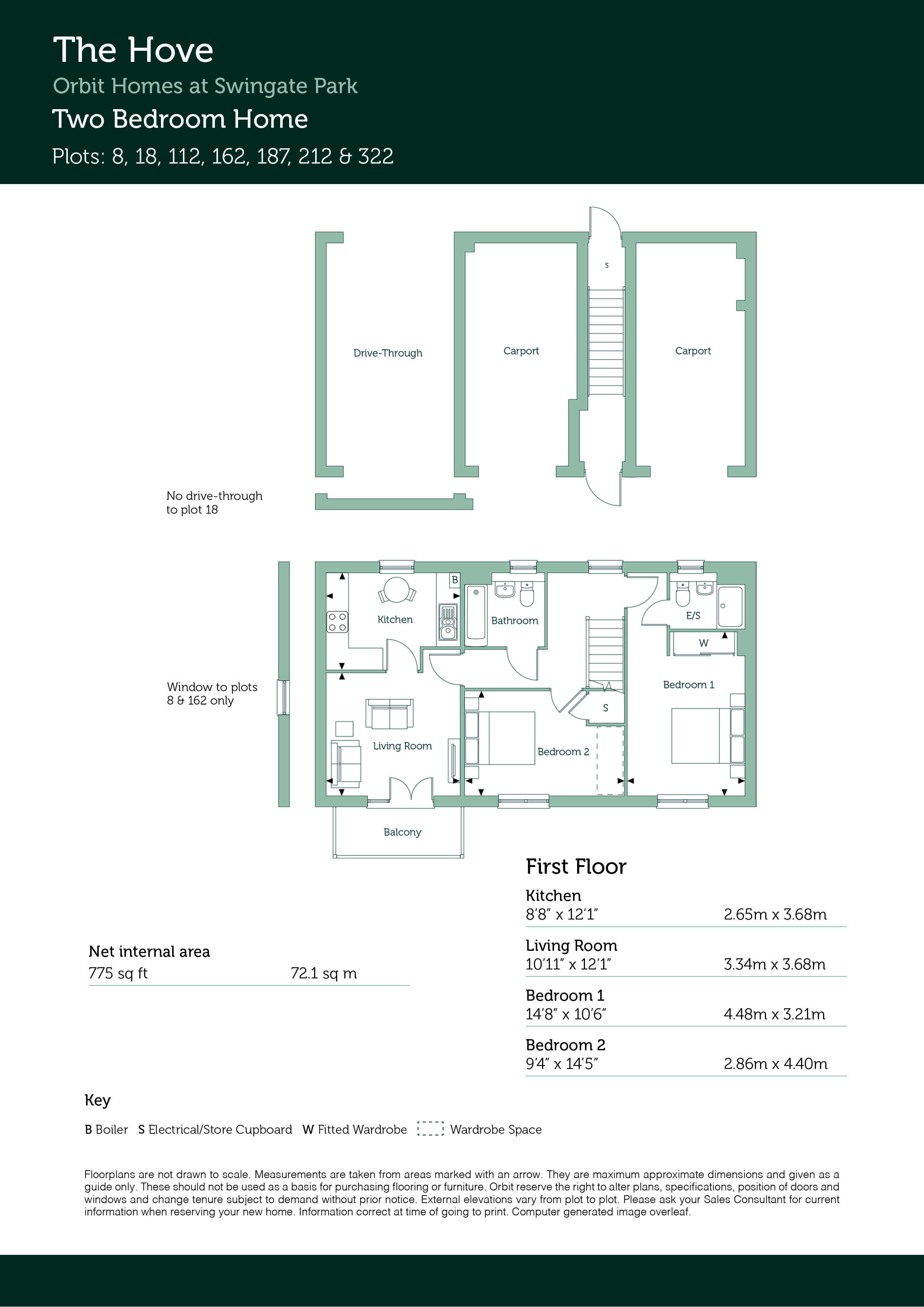
Plot 187 - The Hove

The Hove is a well-designed two-bedroom home that combines modern comfort with practical living, set across a single floor. With its bright interior, private balcony and 2 allocated parking spaces (including a car port), this home is ideal for couples, first-time buyers or downsizers.

The ground floor comprises of a drive-through to the rear car park, as well as additional parking and private storage room. Ascending the steps to the first floor, the hallway leads into the living area, opening directly onto the balcony—perfect for enjoying fresh air and outdoor dining. The adjoining kitchen/dining area comes fully fitted with integrated appliances, including a single oven, induction hob, fridge/freezer and dishwasher.

The large, main bedroom benefits from a fitted wardrobe and private en-suite shower room, while the second bedroom is a generous double, ideal for guests, family, or a home office. A sleek family bathroom adds extra flexibility, while an extra storage cupboard ensures the home remains clutter-free.

Away from the home, residents can enjoy a tranquil countryside setting yet close to village amenities, schools and Hailsham town centre. There are also areas of open-green space to enjoy, with pathways linking to neighbouring Hellingly Country Park.

Our properties at Swingate Park come with an extensive specification, including PV panels, EV charging points, flooring throughout, turf to rear gardens and much more.

Anticipated build completion Feb-Mar 2026.

Predicted Energy Assessment:
Energy Efficiency Rating: 83 (B)
Environmental Impact (CO2) Rating: 90 (B)

---
Tenure: Leasehold
Length of lease: 990 years
Estimated annual service charge: £387.96
Service charge review period: April (annually)
Estimated council tax band: Council Tax Band will be confirmed by the local authority on completion of the property
---

The energy performance has been assessed using the Government approved SAP 10 methodology and is rated in terms of the energy use per square meter of floor area; the energy efficiency is based on fuel costs and the environmental impact is based on carbon dioxide (CO2) emissions. These are predicted ratings which might not represent the final rating EPC rating upon completion of the property.

Please note that whilst every effort is made to publish interior images as similar to the home as possible, these images are not specific to the development and are selected from a library of show homes across our Orbit Homes developments. This means that the images shown do not represent the specification included within this specific plot and variances will apply. These images are used for illustrative purposes only, and selected to give the closest representation available of the layout. For site specific layout and specification, please refer to technical drawings.

*Not available in conjunction with any other offer. Allowance on completion, up to a maximum of £1,500. Subject to terms and conditions.

Description

Property information & downloads

Key features

Material information

Floor plan Brochure Brochure
Local area information
My Places Include travel time from key places

You can add locations as 'My Places' and save them to your account. These are locations you wish to commute to and from, and you can specify the maximum time of the commute and by which transport method.

Disclaimer
The information displayed about this property comprises a property advertisement. Share to Buy Ltd makes no warranty as to the accuracy or completeness of the advertisement or any linked or associated information, and Share to Buy has no control over the content. This property advertisement does not constitute property particulars. The information is provided and maintained by the sponsoring housing association. Please contact the housing association or estate agent directly to obtain any information which may be available under the terms of The Energy Performance of Buildings (Certificates and Inspections) (England and Wales) Regulations 2007.
Sign in to email housing provider Sign in
Monthly cost calculator
£120,000 Shared Ownership New Build Full price £300,000
Estimated monthly cost £1,125
£

How is this calculated?

Send enquiry to the seller