Under Offer

£61,250

Ashby Wood Mews, Northampton, NN5 4GZ
Share 25% / Full price £245,000 / Min deposit £3,063

House
2 bedrooms
Not specified

SO Resi
02080229696
Sign in to enquire

Monthly cost calculator


Summary

A 2 bed shared ownership property available in Northampton, Northamptonshire

Description

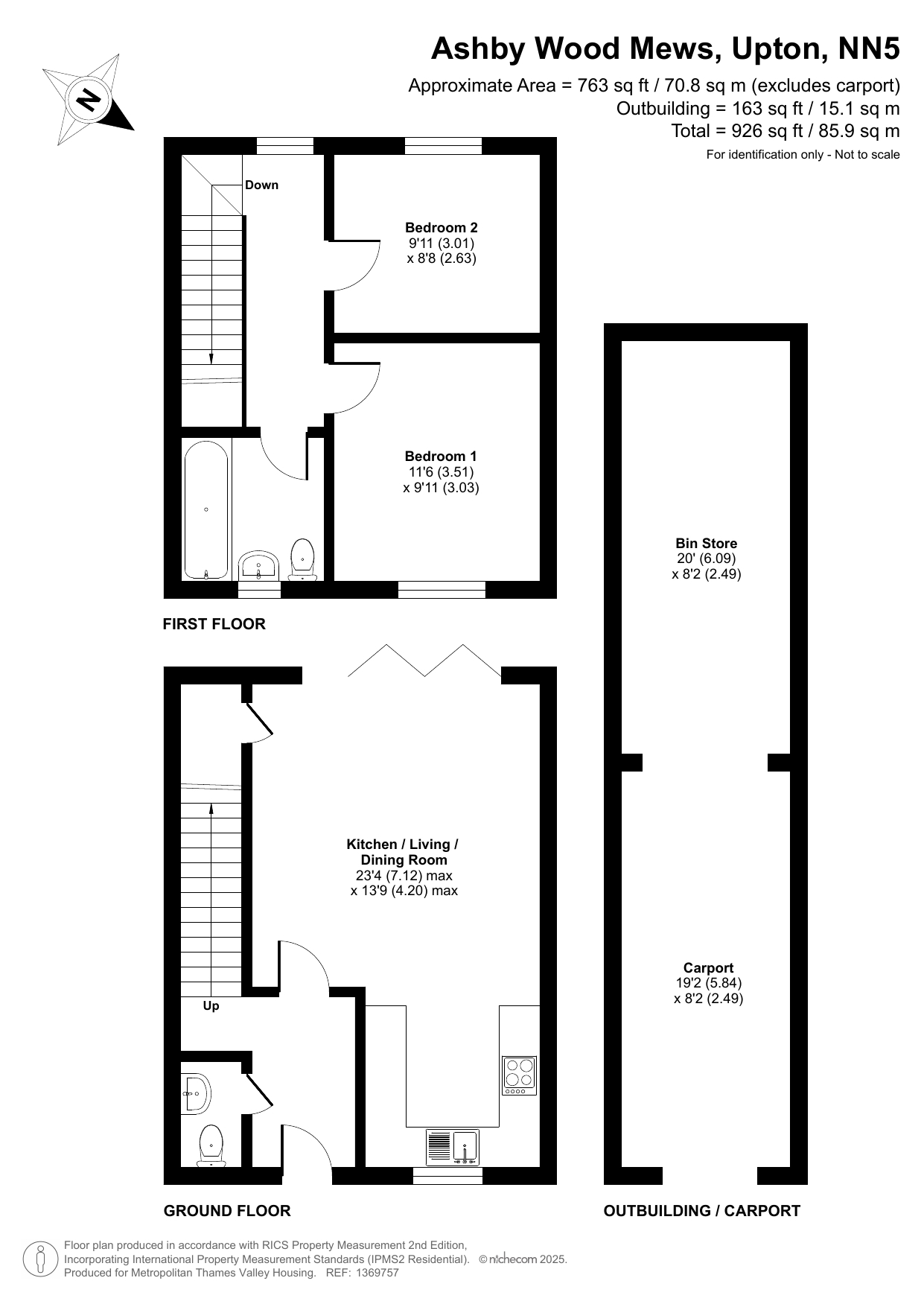
This bright and spacious two bedroom end of terrace house is now available in Northampton through Shared Ownership.

The property comprises an entrance hall, a spacious living room with a modern open plan kitchen and WC on the ground floor. On the first floor there are two bedrooms and a bathroom.

Outside, there is a rear garden, allocated parking and a bike store perfect for couples and small families.

Available for £61,250 for 25% share based on the marketing figure of £245,000.

Monthly rent - £437.33
Monthly Service Charge - £97.40
Total Monthly Charge - £534.73 plus mortgage required for 25% share.

On certain properties, service charges may be billed in different frequencies. For the purposes of illustration, our advertisement will state the equivalent monthly charge. Where charges are not billed monthly, purchasers will be informed before proceeding.

An annual rent increase takes place every April

Location

This property is located in an excellent residential area in Northampton. One can benefit from a tranquil environment, convenient access to local amenities, and well-maintained surroundings, making it an ideal choice for families and individuals seeking a peaceful yet connected lifestyle.

EPC rating

Energy rating band - B

Environmental rating band - B

Lease information

Years remaining on lease: 986

In certain cases, the remaining length of the lease on a property can impact the availability of mortgages to prospective purchasers and the future saleability of the home. We recommend that you speak to your solicitor and your financial advisor to ensure that the lease length is suitable for your needs.

Other information

How we allocate Shared Ownership homes

We offer homes on a first-come, first-served basis, as long as you meet all the eligibility criteria. Sometimes, we give priority to people who live or work in the same area as the home. This is based on rules set by the local authority. All Shared Ownership providers must publish an allocations policy, which explains how they decide who gets a home.

If the home is managed by SO Resi and MTVH

You can read the Shared Ownership allocation policy on the MTVH website. SO Resi is the Shared Ownership brand of MTVH, a housing association.

If the home is managed by another provider

Visit their website to find their allocation policy. Contact us if you have any questions.

Description

Property information & downloads

Key features

Material information

Floor plan
Local area information
My Places Include travel time from key places

You can add locations as 'My Places' and save them to your account. These are locations you wish to commute to and from, and you can specify the maximum time of the commute and by which transport method.

Disclaimer
The information displayed about this property comprises a property advertisement. Share to Buy Ltd makes no warranty as to the accuracy or completeness of the advertisement or any linked or associated information, and Share to Buy has no control over the content. This property advertisement does not constitute property particulars. The information is provided and maintained by the sponsoring housing association. Please contact the housing association or estate agent directly to obtain any information which may be available under the terms of The Energy Performance of Buildings (Certificates and Inspections) (England and Wales) Regulations 2007.
Sign in to enquire
Monthly cost calculator
£61,250 Shared Ownership Resale Full price £245,000
Estimated monthly cost £867
£

How is this calculated?

Send enquiry to the seller